前言:
【关于业主】
业主是一对年轻的夫妻,儿女双全,自由创业者。比较喜欢中式风格和稳重的感觉,但又不想让空间过于沉闷;注重收纳,需要尽可能多的储物空间。
【设计重点】
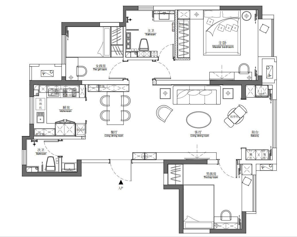
1、将厨房墙体拆砸掉,腾出位置做通体柜,增加储物空间;柜门与厨房门一门两用,增加空间的多变性;
2、将主卫和主卧之间墙体拆砸掉,将卫生间面积向主卧区域扩展,并把卫生间门改到侧面;床侧整面墙定做整体衣帽柜,提升主卧的储物功能和舒适度;
3、男孩房的门做成隐形门,与客厅电视墙融为一体,提升空间的整体性。
【设计说明】
整套方案的设计风格以现代轻奢风为主,同时融入中式元素
1、拆除部分墙体,开阔视野、改善空间的整体动线。新建部分墙体,改善储存空间不足的问题;
2、比较注重灯光的搭配设计,整体采用无主灯照明,搭配嵌入在柜子内的灯光,及墙面的暗藏灯带和壁灯,提升空间的氛围感;
3、活动区域整体色调采用灰白棕为主色系,搭配少量金属加以点缀,使空间更具清冷感和奢华感。
客厅空间以灰白棕三色为基础色调
搭配墨绿色沙发和橘色跳跃的卡通凳
再配以白绿相间的曲线图案的地毯
整体沉稳的基调上
使空间增加了许多灵动性
沙发背景采用曲线留白造型设计
配以灯带及圆形画装饰
以简约的线条和形状勾勒出山峰与日出的画面感
暖黄色的灯带开启后
像是黄昏时候太阳躲在山峰后散发出的光芒
增加了空间的层次感
也平添了几分柔美和温婉的韵味
两侧庄重的木板造型
搭配金属质感的线条和壁灯
在补充光线的同时增加美观性
同时也增添了空间的精致感
小小的一株绿植作为点缀
让整个客厅增添了一份鲜活和生机
深蓝色皮质沙发
搭配金属腿的圆形错落式茶几
配上墨绿与白色相间的地毯作为装饰
营造客厅精致的氛围感
橙黄色的小熊座椅
又为客厅增添了一份趣味性
将电视墙右侧男孩房的门
设计成隐藏门
比例上与右侧鞋帽柜形成视觉上的对称关系
既保证空间的整体感
又提升了空间的美观性
电视背景墙同样大面积采用留白处理
左侧是男孩房的隐形门设计
定做一字型电视柜
与右侧入门鞋帽柜融为一体效果
让客厅空间整齐而简练
冰箱
玻璃移门
洗碗机
置物架
油烟机
嵌入式家电
现代
轻奢
烤箱
厨房
橱柜
瓷砖
壁柜
玻璃柜门做到一门两用
既可以做酒柜的柜门
也可以作为厨房与客餐区相隔开的厨房门使用
拉上玻璃门
形成一个封闭式厨房
可以有效的阻隔油烟
打开玻璃门
可以增加整个空间的通透感和开阔性
充满烟火气的厨房
充溢着幸福的味道
包裹式的通体柜将冰箱嵌入其中
增加空间的整体性
靠墙定制整墙的餐边柜
充分满足日常收纳需求
中间部分留出开放格
便于常用物品的拿放
将直饮机规划在开放格处
方便日常饮用水
把餐边柜的其中一扇柜门换成玻璃门
内嵌灯带
可以用来展示艺术品
厨房与餐厅之间原本是用墙作为隔断的
在经过设计之后
将墙体拆砸掉
镶嵌定做柜体
增大储物空间的同时
也增加了展示空间
玻璃柜门搭配灯带的设计
通透明亮
作为一个酒类藏品展示区使用
珍藏各类酒水都能悉数收入
彰显了主人的不俗品味
阳台空间进行了合理利用
规划了洗衣功能能
做了满墙阳台柜
将洗衣机、烘干机嵌入其中
顶部做升降式电动晾衣架
收起来时隐藏到吊顶中
美观而不繁琐
另一侧也同样做了满墙的阳台柜
将扫地机器人嵌入
两侧的阳台柜设计
提高了空间的利用率
可以将家里的繁杂与凌乱藏于柜子中
尽显干净整洁
灰色的整体衣柜
米灰色的墙面
灰色的地板
搭配橘黄色床和床头柜作为点缀
满足女主人对艳丽色彩的一份钟情
点亮空间
主卧室定制一字型通顶衣帽柜
无把手的柜门设计
观感上舒适又简洁
衣帽柜处设计了两个开放格
方便平时的使用
也可以作为展示空间
使空间更具有层次感
在定制衣帽柜与床相连的拐角处延展出一个床头柜
另一个床头柜是和床相搭配的
这样不对称的设计
让卧室空间更丰富生动
也大大便捷了衣柜的开启
梳妆台与电视柜组合搭配
增加了空间的实用性
造型亚克力的椅子
体现着女主人的小女人情怀和内心世界
飘窗位置改造成休憩区
铺上软垫
放上舒适的抱枕
闲暇时光窝在这看看书
或眺望远处的风景
愉悦身心
男孩房浅蓝色的墙面
搭配一张深蓝色的床
为孩子打造一个冷静沉稳的舒适空间
定制书桌为孩子提供学习、玩游戏的空间
书桌上方的两层置物层板
用来摆放一些装饰品和玩具模型
满足孩子的兴趣爱好
也增加了私属空间的童趣性
在房间墙体的凹槽处设计衣柜
柜门与墙体同处一个平面
既节省空间
又满足孩子的储物需求
飘窗处延续主卧飘窗的设计
绿色的搭配增添了空间的跳跃性
丰富空间的视觉感受
小公主房的设计
以粉色、桃粉色作为主题色
营造出纯真可爱与恬静舒适的氛围感
榻榻米床与书桌的组合定做
既满足孩子未来学习的功能需求
又为小朋友可可爱爱的童趣元素的小摆件
提供了展示空间
女孩房空间面积小
衣柜与榻榻米床的整体设计
增加了收纳空间
也让空间更显开阔
相关案例推荐
艺沐思维设计
设计师相关作品

粤公网安备 44010602000156号