前言:
“YUMMY PARK”由天南地北热爱生活的股东集合而成,东北三省,珠江三角区,大湾区回归的。想要创造一个新派川粤简餐,融合当下时尚年轻人的喜好和元素,又要能兼顾商圈附近的白领精英审美,时尚工业风油然而生。
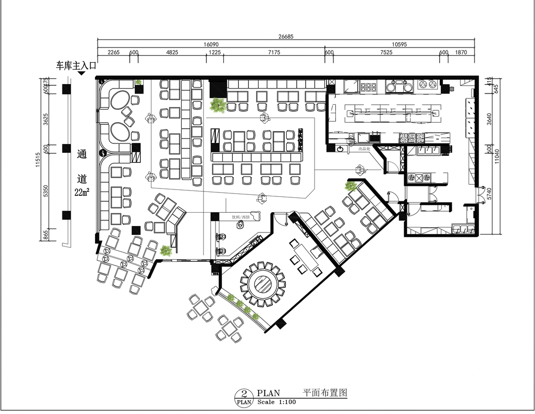
利用得天独厚的地理位置(不到1公里处‘宝能演艺中心’不定期举办各种演唱会)、各种大型小区与写字楼,平面布局以可开可合的思路,虚拟分区的同时,也可根据不同场景需求拼合一起。
在设计中多以矮隔断的形式划分区域。门面设计同理,折叠窗既能隔开室内外的空间,也可在天气适宜的情况下,敞开窗户,让室内外之间能有更多的互动。大门以退为进的手法,有请君入内的表达,也留出给时尚潮人打卡踩点的空间。
步入餐厅,首先映入眼帘的是一幕落日晚霞的背景墙,将用餐时候的休憩感拉满。工业风红与黑的吊顶,两种色系的碰撞,形成一种强烈的视觉对比。暖光灯牌又将这种视觉冲击弱化,产生温暖惬意的氛围感。
暗调微光修饰
打造浑然天成的隐雅氛围
享受身心放松的用餐时刻
在同一空间用不同的材质表达层次感,复古暗黄绿软包卡座原本是两种截然不同的色彩印象,但组合后却是自由自在的感觉。考虑就餐人群,设置零散小桌动线设计,能更高效的利用空间。
餐厅划分多个用餐区域,每个区域独立又相互呼应,利用相对的背景造型墙,打造独特而又精致的缺陷美。质朴粗糙的水泥,发挥着独特的魅力,简单不加修饰,实则蕴含着追求自然的艺术肌理感。
相关案例推荐
居研设计
设计师相关作品

粤公网安备 44010602000156号