前言: 玫红色来源于玫瑰的颜色。玫瑰被誉为美的化身,而被用来命名色彩。玫瑰红的色彩透彻明晰,既包含着孕育生命的能量,又流露出含蓄的美感,华丽而不失典雅。
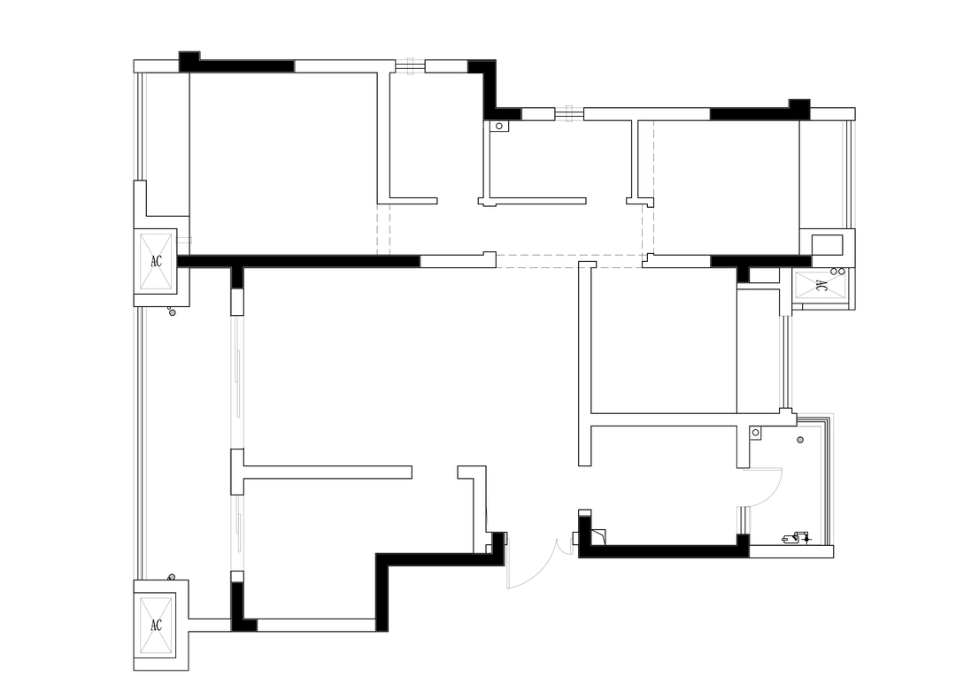
户型改造:
1.房和生活阳台微调,把排水管嵌入到墙体,满足业主需求的前提下更方正实用.
2.景观阳台纳入客餐厅,改善公区的开间。
3.拆除入户异形房间,增加公区的进深。改善公区视野、动线以及鞋柜储物。
异型房间的拆除满足了家政和西厨双功能。竖厅改横厅,空间结构更饱满,舒适度更高。
4.拆除主卫、调整次卫,主卧进深和开间得到质变,满足舒适大卧室和开放式衣帽间。
在色调上为业主和她的女宝打造一个华丽不失典雅、 活泼、 浪漫的视觉空间。
在功能上为业主和她的女宝打造一个宽敞、 舒适、 干净、 井井有条的生活空间。
玫红色来源于玫瑰的颜色。玫瑰被誉为美的化身,而被用来命名色彩。玫瑰红的色彩透彻明晰,既包含着孕育生命的能量,又流露出含蓄的美感,华丽而不失典雅。玫红色是一种非常显眼的颜色,也是一种中等的色调,能够给女性带来梦幻般的氛围。
沙发背景墙别具一格,与鞋柜、西厨及生活阳台相连,形成流畅的空间布局。美式线条收纳柜的设计既增加了实用功能,又凸显了复古韵味,赋予空间一种典雅、舒适的氛围
软装上它搭配同系色和类似的亮色,制造出活泼的效果。而绿色系的色彩给人玫瑰花叶的感觉,搭配起来很协调。通过使用补色的蓝色与其搭配,衬出了动感。
餐厅空间通透明亮,餐岛色彩以黑白为主,大理石纹路岩板装点的餐岛一体设计,兼具美观与实用性。复古餐椅的点缀,增添了一丝典雅与别致。
整个餐厅充满了现代与复古元素的完美结合
展现出一种别样的生活情调
卧采用现代复古与现代混搭的设计风格,以复古墨绿色和现代奶油色为主,营造出柔和、温暖的视觉感受。
精致现代的梳妆台和床头柜,搭配简约现代的台灯,让卧室更具时尚感和高雅气息。
最后加上单人懒人沙发,您可以在卧室中尽享闲暇时光
相关案例推荐
岩居.De刘希宏

粤公网安备 44010602000156号