前言: 本案为设计师为自己的家庭成员设计的家,在看房初期曾将73㎡的户型改成三房的布局,后来实际开工后再次评估现场条件,决定还是保留两房的结构。改造后的户型和原始户型形成鲜明对比,更好的采光通风条件,更便捷的生活路径,空白画布已经架好,等待使用者们描画着未来。
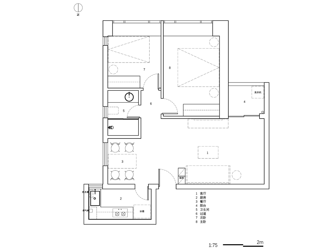
房屋原始布局为常规的两室两厅,通过一个1㎡左右的过道去向两个房间和卫生间,厨房在空间的一角,阳台倒是朝南,但因为开口尺寸不大影响了客餐厅的采光,这些原始条件也导致该户型是小区单价最低最不好卖的原因。
重新设计后的布局对调了之前卧室和客厅的位置,拆除中间的隔墙将原本横向的客餐厅变为纵向的大厅,这样南向的光线可以最大化进入室内,让原本开门较暗的客厅变得豁然开朗;
厨房因为承重墙的原因不能变动位置,但是将冰箱移到外面后橱柜的操作空间变大了不少;
卫生间通过新增口袋门和两扇渐变玻璃门改为三分离的模式,这样一家人使用也能做到彼此之间的互不干扰;
将原本阳台区域纳入次卧,卧室门的开启方向从客厅看刚好挡住床,增加隐私性的同时也让卧室门常开的状态下,书房像是客厅的延伸空间;
主卧入口由之前大门正对着的位置改为从飘窗进入,不仅提高卧室私密性,也让客厅的视野得到延伸,将窗外延绵不断的绿植尽收眼底。
改造后的玄关空间光线明亮,将原本卧室入口的位置改为放置洗衣机干衣机,这里靠近卫生间,可以让家政活动的动线变得更为便捷。
玄关柜一侧的空间做成开放格,给到入门侧使用,镂空的位置嵌入灯光,丰富照明的方式;一旁的矮凳既是餐椅也可供换鞋时使用。
改造后的客餐厅采光通风俱佳,原有飘窗加多一组地柜,收纳儿童的玩具和读物。加宽的飘窗不仅是主卧的走廊,也像是客厅的L型沙发模组,来访朋友多的时候可以围坐在这。
手刮地板的肌理和布艺沙发的纹理让纯白空间多些自然柔和的细节。
连接客厅与卧室的走廊用了同色系的黑色手刮地板,与黑色窗户保持一致,形成一个整体的色块。
卧室门采用推拉门的形式,门常开的状态下客厅和卧室都有着双倍的视野和采光。
一物多用的小空间,既是小朋友的玩具区,也是小花园,还可以是沙发。
一物多用的小空间,既是小朋友的玩具区,也是小花园,还可以是沙发。
餐桌餐椅选用了现代家具史里的经典家具,不锈钢材质的置入平衡了大面积木质感带来的温暖感,为空间带来一抹冷冽的气质。
圆形餐桌的形式更适合家里的动线。
围合房间的墙体用了弧形的形式,很好的弱化了墙体直对沙发区的锐利感。
次卧由奶奶使用,书桌功能变为奶奶的梳妆台,原有阳台面积纳入卧室内,这也是奶奶日常锻炼活动身体的地方。阳台的水管用斜角的方式包裹,桌子顺应现场条件制作,入口处看是钝角。
弧形墙体的背面是一整组衣柜,避开床的高度用平开门收纳衣物,下方的柜体用翻版门收纳小朋友的滑板车。
开发商设计的卫生间是墙排走管,所以马桶的位置不能任意改动。在原有卫生间面积的基础上改为三分离的布局,丰富了卫生间的使用场景,互不干扰。
定制了家人喜欢颜色的大理石台盆,一旁的壁灯既复古又前卫,不规则的镜子也让空间多了一丝叛逆的气质。
镜中的景象,淋浴间的亮光手工砖来自马拉齐,餐厅吊灯为&Tradition,黑色兔子椅是SANAA的作品。
相关案例推荐
不合时宜设计
设计师相关作品

粤公网安备 44010602000156号