前言: 2号住宅项目是位于杭州富阳区微风之城,小区本身的外部环境、空气、景观都十分舒适。改造前是十分局促的四室格局,改造后根据实际需求只保留两房,变成一个宁静的、带有现代工业设计风格的多功能居住空间,轻松明快的室内氛围为居住者提供了一个私人生活与休闲场所。
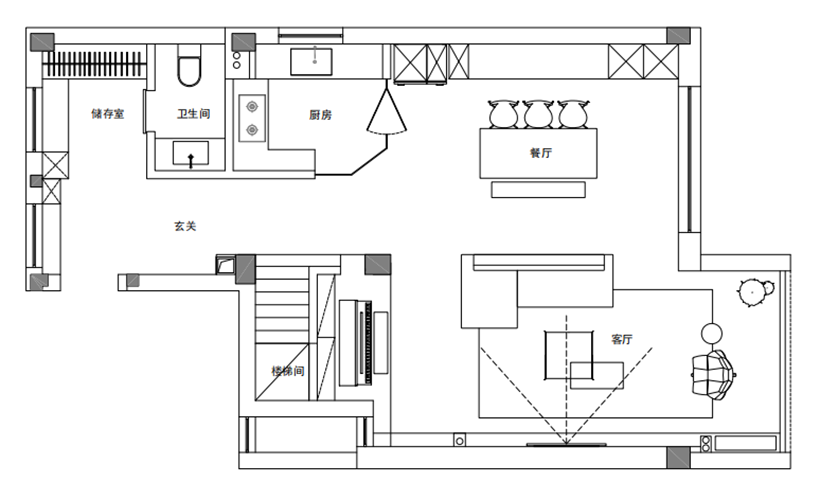
一楼移动了原来厨房的位置,在进门口位置打造出一个玄关空间和卫生间作为缓冲区。厨房和餐厅向原来客厅的方向延申,敲掉一个卧室后做为会客厅使用。整个空间动线重新梳理后更流畅,一楼功能区更饱满。
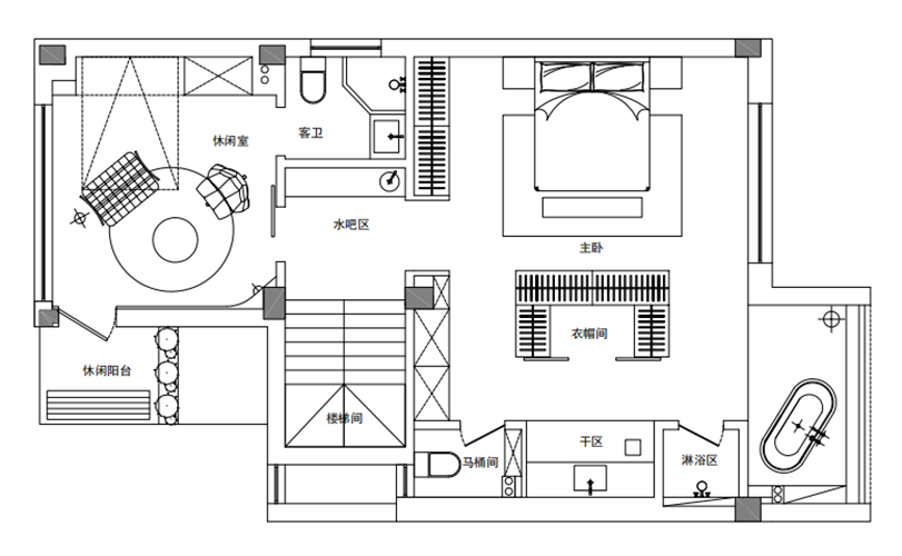
二楼将两个卧室合并成主卧,一般作为睡眠区使用/一半作为衣帽间和卫生间使用。同时打开阳台变成抬高浴缸区。楼梯间也预留了二层的饮水区。
在进门口位置打造出一个玄关空间,用粗犷的红砖做为基调,顶面预埋了有可挂外套的金属杆。
过道区域通过海洋板吊顶引导了进门的动线。丰富的材质也完全改变了原先入户狭窄通道。
海洋板吊顶是现场木工制作,没有经过任何封面处理,保留了最原始的木材质感。
楼梯间的位置预留高度后变成钢琴区。通过结构的交错和色彩的变化凸出效果。
与玄关相同的砖材也出现在客厅空间的壁炉造型中。
黑色的转角沙发将会客区hold住,角落温暖的壁炉和粗犷的红砖是业主对自然生活的向往,是设计师对原始与质朴的致敬。
新厨房将与客厅和餐厅完全整合,整个生活空间向原有卧室方向延伸。
柚木色的凹凸柜门板是特殊定制打样的。台面和墙面均为洞石岩板。
打开后的空间通透流畅,自然光线与清新的空气通过房屋两端开窗进入室内,大大提高了采光与通风条件。厨房西餐台沿着平行方向的墙壁延伸。
“悬空”一体岩板台盆搭配黑色“嵌入式”龙头和一整面镜子=干净、高级、简洁、易清理。
单独拎出浴缸放在阳台区,让浴室变身成为一个功能齐全、光线充足的私人空间。改造前,人们可以从阳台的窗户看到邻居家,这不免会造成尴尬的局面。因此设计师将所原透明玻璃窗改为磨砂材质,窗帘选择了完全不透人影的黑色木百叶,不仅引入了更多光线也保证了居住者与邻居的隐私。
主卧双开门充满仪式感。弧形吊顶往下延申和床背景呼应。造型护墙、壁灯、和墙顶面统一颜色的乳胶漆。
二楼主卧改造则不如一楼公共区域一般大刀阔斧。设计师将二楼的两个卧室合并为主卧,一半睡觉、一半分配为浴室和衣帽间。卧室采用了黑、咖两种颜色,并通过有趣的装饰壁灯和镜面玻璃等材质打造出一个更为安静的睡眠区。
壁炉带来的氛围感。
相关案例推荐
云谷空间设计
设计师相关作品

粤公网安备 44010602000156号