前言:
父母在,人生尚有来处。
每个人都会长大,都会有自己的事业和家庭,但是父母永远会在家里为你留一间属于你的房间。
这个家就是为父母而设计,孩子偶尔回来小住,家的整体属于下沉色调,温柔且坚定,采用的木质也是深色调,空间灵动且质感满分,简单基本上没有过多的装饰面,收纳十足,拍照时业主已经入住了9个月,与业主的气质完美匹配。
家是澄净,是安定,是港湾,是父母的期盼,是我们的来处也是我们的归途。
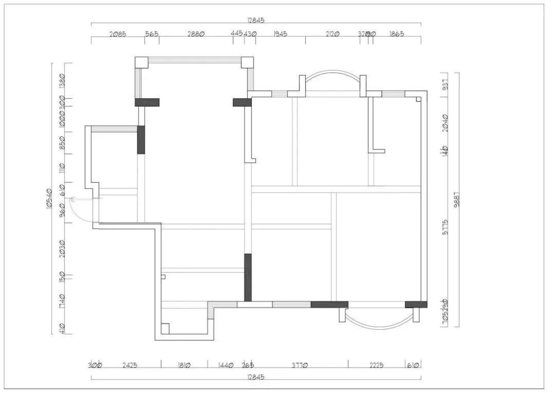
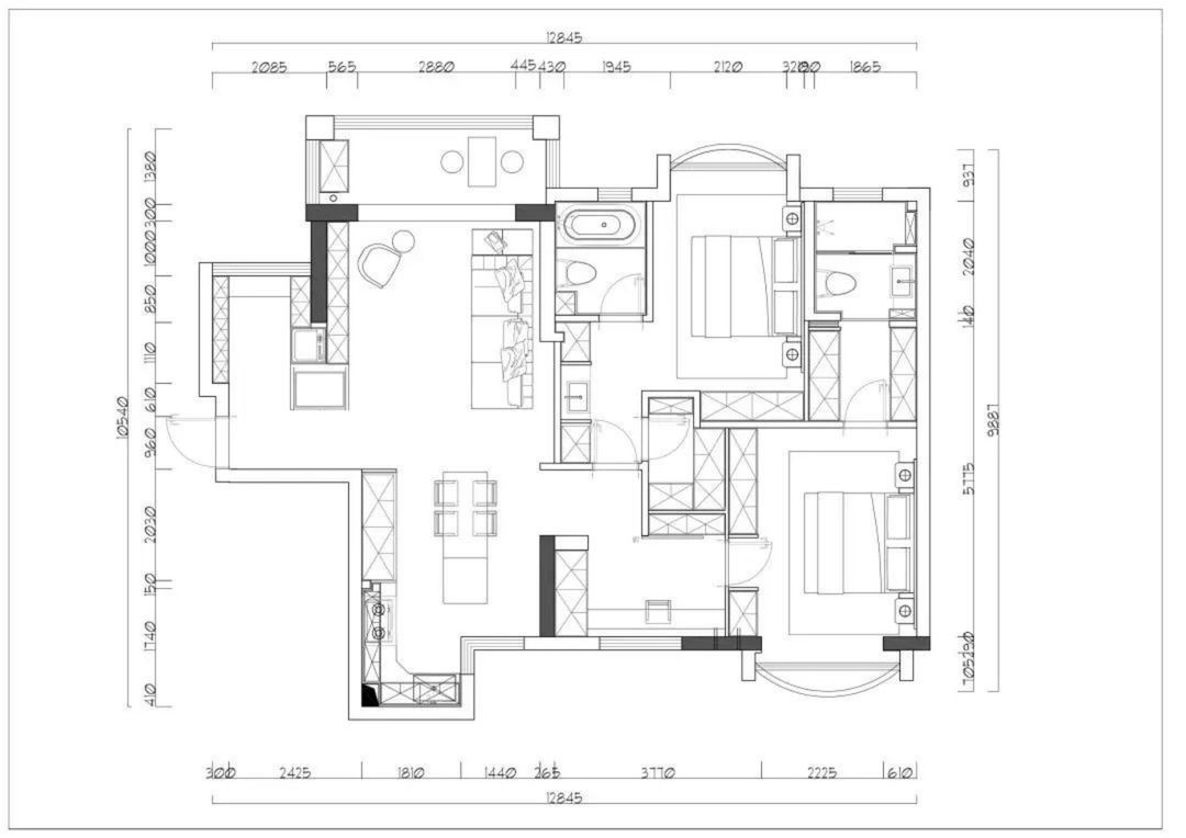
✦ 原本的三房,根据家人的生活习惯,把厨房敞开,让空间通透自然流通。
✦ 把原本的房间书房调整为次卧 ,原本的客卫纳入到次卧形成套房。两个套房空间,便捷了使用习惯。而且抢出了衣帽间的位置。
✦ 把原本的次卧压缩形成现有的书房及走通,并且通过滑门滑动形成与主卧一个套间的形式,增加空间使用率,也给抽烟的爸爸一个独立的空间。
家如其人,业主温润的性格与温柔而沉稳的木色与空间十分契合,我们在挖掘空间的优化的同时也在理解业主的内心,家也便展示出了业主的品味与个性。
以棕色为基调,暖白色与棕色相衬托,色彩的搭配与点缀让空间安静而舒适。
告别快节奏的生活,独享属于自己的慢慢时光。
空间里大面的使用了木质材料,细腻的氛围感透过柔和的木纹凸显出来,墙面使用米色的乳胶漆,浅色的块面留给视觉喘息的空间。
将厨房打开,与餐厅结合,优化动线,在使用厨房时操作更为流畅。生活与美共存,日常与自然共生,每一处都留下生活的痕迹。家庭温暖让空间突破功能的边界,成为情感流动的纽带。
厨房在设计之初需要解决的问题是使用面积有限,也就意味着台面和储物面积不足,于是将厨房打开,将操作台面延伸出来,一排高柜也有效的解决了厨房和餐厅的收纳问题,整面的木色延伸到顶,木色与黑色岩板搭配出空间的美感。
相关案例推荐
吾同设计
设计师相关作品

粤公网安备 44010602000156号