前言:
业主留法多年,钟情于法式老公寓的独特韵味,回国后自创了一个手袋品牌,是一名独立设计师,因此在审美上也有一定的见解,十分清楚自己想要一个什么样的家,本案是完全基于业主的喜好,实现了她理想中的法式公寓风格。
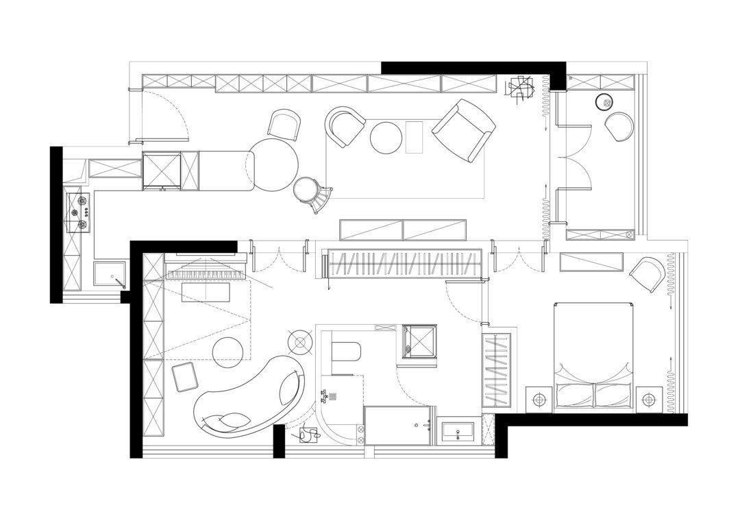
空间布局是一大亮点,由于业主一个人居住,我们将三房改两房,通过两扇法式双开门,将起居室与卧室形成环道关系,卫生间与衣帽间居中,洄游动线令空间充满趣味联动感。客厅依循经典法式布局,沙发围绕壁炉展开,整体风格纯正且典雅,老公寓的调性优雅隽永。
软装则是法式风格的灵魂之处,业主强大的收藏癖让空间耐人寻味,且十分尊重原创设计,家具都是进口原版,独特且高级的审美,丰富且精致的物件充满每个角落。我们用专业的知识去把这些美好的东西进行梳理对比,使之合理存在于空间,每一隅角落都和谐美好,共奏经典高雅的法式之风。
常规的小三居结构,客餐一体,厨房不大,由于业主一个人居住,户型上我们做了较大的改动,实现业主心中的法式公寓风理想家。
1.利用法式特点,打造一个对称的双开门关系,通过两道门进入到不同的空间,中间通过一条走廊连接起来,形成一个环线的关系;
2.三房改两房,把其中的一间房一部分分给家庭厅,一部分分给洗手间,让空间体验感更舒适一些;
3.客厅以围合方式展开,符合法式风情特点,不刻板不拘束。全屋收纳做到了最大化,每一寸空间都物尽其用。
客厅布局方式完全契合法式风情,沙发围绕壁炉展开,搭配石膏雕花灯盘以及格式装饰物件,纯正典雅的法式韵味不彰自显,由此奠定全屋基调。
壁炉居中而置,两侧以收纳柜对称展开,除了做书架外,还能展示各种摆件以及装饰画,丰富空间格调,单人沙发款式各异,空间灵动且趣味十足。
法式复古玻璃门连接阳台区域,奶白配色轻盈温柔,法式的优雅中多了几分治愈感,家庭氛围令人沉溺,舒缓放松。
电子烟雾壁炉,采用纯正的法式造型,奠定客厅格调,电子火光暖意洋洋,堆砌的书籍营造慵懒的书香氛围,法式公寓的情调跃然纸上,生活精致且优雅。
典雅的中古家具嵌入角落,业主各式各样的香薰以及收藏,遍布家中各个角落,密合情感需求,扩充空间魅力,现出业主独特的个人品味,以及对家赋予的情感。
为了打造纯正的法式风情,客厅不以电视为中心,而是采用精美装饰物件填满墙壁,任凭光影辗转、时光流逝,也能在一呼一吸间享受独属于空间带来的韵味。
意大利进口Brionvega笑脸音箱,订购八个月,漂洋过海来到家中,有自己独立品牌的业主,十分尊重原创设计,家里的每一件物件都耐人品味。墙面以装饰镜为主,四周扩散着精美挂画以及墙饰,乱中有序,展现艺术美之外,恰如其分的游走着生机与活力。
基于业主的喜好以及职业特性,空间中富含大量的精美小物件,我们用专业的知识去把这些美好的东西进行一个梳理对比,都让它合理的存在,将业主对生活的热爱融入日常。
餐厅面积不大,以复古感小圆桌划分餐厅区域,既是餐厅也是下午茶功能区,完美契合法味格调。造型感餐椅艺术氛围浓郁,线条和曲线感灵动简约,不失品位与趣味。
空间白色为主、小面积彩色为辅的配色比例,在碰撞张力中铺垫了高雅基调,更能衬托出每一处设计的巧思。
厨房和餐厅之间设置了一小段岛台,作为过渡,也承载了储物的需求。地板与地砖采用自然拼接的方式过渡,简约美观,厨房隐藏于角落,动线舒适,且不受油烟干扰。
对称的双开门设计,让卧室有了不同的进入方式,空间形成流动感,神秘且灵动。法式复古玻璃门,让每一次进出都充满仪式感,镀上优雅气质。
背景墙采用石膏线条简单装饰,重点来突出床头的造型感,定制床头尽显业主高品质审美。两侧搭配小巧壁灯,呼应床头颜色,大气高级的复古调充分迸发,黑与白的碰撞多了一份时尚的优雅感。
中古款家具典雅精致,放在床边做床头柜再合适不过,装点卧室角落,法式复古风情伴随生活起居,优雅浪漫。
床头另一侧放置简约边几,同样采用丰富的饰品点缀,空间饱满精致,提升生活仪式感。
依据业主需求,我们只保留了一间卧室,空间虽然不大,却营造了独立且静谧的睡眠环境,留白空间加入黑色色块,契合了复古的法式格调。
卫生间分布于卧室与起居室之间,双开门在此形成洄游动线,走廊铺贴黑白复古花砖,衣柜布满墙面,形成衣帽间功能,提高空间利用率,丰富储物机能,让生活更加便捷。
卫生间、衣帽间以及洗衣区,形成了一个封闭私密的洗衣动线,不⽤将⾐服带出客厅餐厅等公共空间,符合业主的生活习惯。洗漱台对窗而置,搭配入墙水龙头以及宝格丽大理台盆,一体化设计美观大气。
湿区以黑框压花玻璃隔断,极致的复古调性提升空间美感,墙顶地采用一体化微水泥设计,丝滑无缝的奶油质地彰显极简效果,淋浴房无框玻璃隔断以及下沉式防水处理,精简且高级。
简约的浴缸摆放角落,搭配黑色百叶帘,光影洒落在压花玻璃上,朦胧美感被放大,泡澡时光惬意且优雅。
起居室不同于客厅的丰富与精美,而是被舒缓的奶油感包裹,静谧的氛围把生活的碎片拼凑完整,赋予空间惬意舒适的放松感。
起居室不同于客厅的丰富与精美,而是被舒缓的奶油感包裹,静谧的氛围把生活的碎片拼凑完整,赋予空间惬意舒适的放松感。
墙面做出拱门造型,空间产生折叠感,层次立体且艺术感满满。遮光帘带来柔和光影,懒人沙发随意摆放,没有刻意的规则,满眼随性与轻松。
折叠屏风做背景,以法式复古的精致物件和光影氛围,为日常生活奏响温柔浪漫的序章,承载着每天的优雅与仪式感。
钢琴摆放在门后角落,上方点缀上装饰画,融合进整屋格调,完美解决了钢琴的安放问题,练琴环境轻松治愈。
相关案例推荐
时光筑造空间设计
设计师相关作品
编辑精选

粤公网安备 44010602000156号