前言:
予象空间认为:经过疫情时代的洗礼,人们更加重视健康与生活品质,更相信品牌。医疗美容诊所的空间设计,不仅要营造空间环境与心理体验交织的疗愈之地,更是要通过空间设计,塑造品牌价值,衍生社交属性。
此次迁址卓越前海壹号,予象设计延续品牌专业、洁净的传统,并探索构成主义-自然-场景的创新空间体验,将韩式医疗美学的精髓融入到空间与细节之中。
作为韩式医疗美学的缔造者,深圳赫尔医疗美容诊所由韩国医美领域的行业大咖创办。在本次空间环境升级中,侧重以专业形象营造信任感,并给就诊者带来私密、温馨和惬意的疗愈体验。
诊所外立面是质朴粗粝的墙面,与半透明的形象墙形成明暗对比,让品牌LOGO更为瞩目。一束光照亮墙面的肌理,恰似某种温柔的呼唤,让走进这里的人们,迎来美丽的新生。
整体空间保持极简格调,受到构成主义的启发,通过不同材料与几何形体的创新组合,结合动线的规划,实现整体的有机连接,形成空间的流动性。利用大而平顺的圆弧和材质的柔和质感,柔化空间构造,实现优雅的美之意向。
形象墙墙面选用杜邦纸,墙体内藏灯光,形成柔和细腻的光效。杜邦纸在灯光的映衬下,凸显出柔纱材质的肌理感,弥漫细致柔和的气质氛围。这一墙面的创新设计,运用在多个功能空间,成为空间最重要的皮肤,诠释温和、细腻而朦胧的空间情绪。
入口巧妙的设计,实现了展示与私密的融合。前厅形象墙搭配入口富有科技感的金属LOGO厂牌,其特有的角度,确保行人仅能从远处看见内部,注重功能性的同时让空间诗意地展开。形象墙的另一侧,陈列着各项荣誉,给进入接待大厅的顾客积极地心理暗示。
大厅浸润在温柔的弧线中,圆形沉降的软膜灯,模拟天光洒入;弧形的组合沙发,在有序中展现慵懒的舒适。
落地窗前的绿植小景营造出阳光花园的生活氛围,整个大厅舒适、惬意而不失温柔,充满故事的情景。
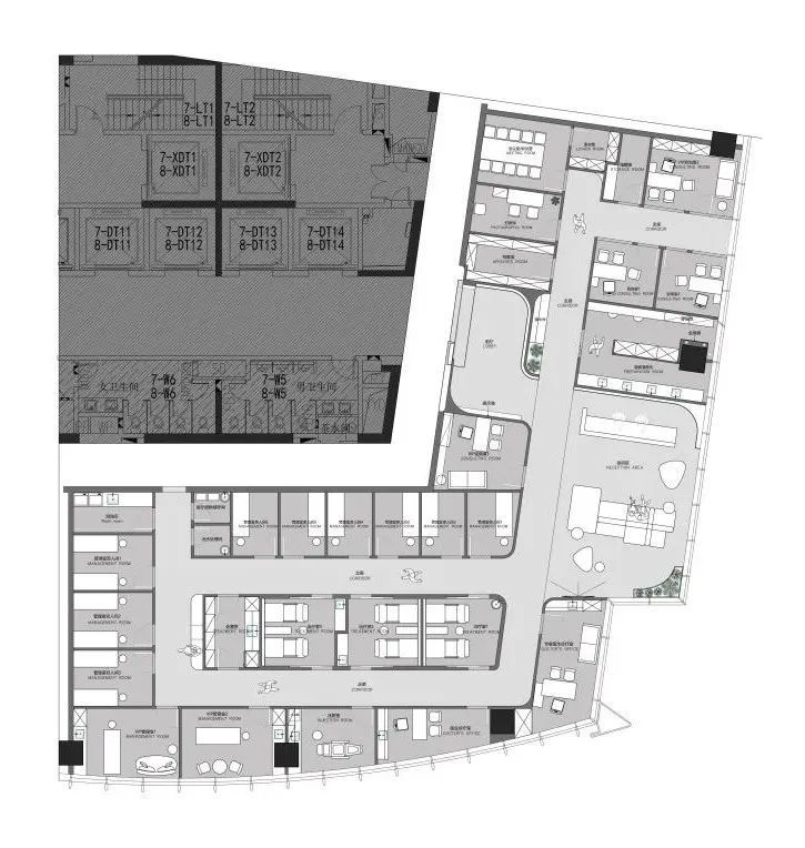
大厅区分了诊所的左右两边,左边是咨询、顾客准备和供医护人员使用的功能区,将过道紧邻前厅的位置推进去,嵌入开放式水吧,便于人员接待和顾客自用。
紧邻水吧的热带植物群落,与走廊转角处的观叶植物呼应,引入自然的气息。
顾客准备间为半开放式,沿两侧依次分别设置单人盥洗和整妆位置,中间以极简风格的储物柜为隔断,柜体面向入口的一侧设置导视。
极小的空间中兼具多重功能,并派生出美感。
右侧是医疗美容作业区,集中安排门诊与专业操作间。照顾到顾客的隐私,从大厅延伸的过道处理为洁净的墙面,兼具导视的功能。
作业区整体采用环形布局,位于中间的治疗室均为两人间,两侧设置移门,缩短顾客移动的路线,也将对同室顾客的干扰降至最低。
柔和的线条一脉相承,延伸到治疗室和管理室,天花和墙面融合平顺的弧度,照明采用软膜天花的散射光,或隐藏灯带的漫反射光,利落的储物柜和置物台,在极简中达致优雅。
这些元素在空间中相辅相成,恰到好处的表达韩式医疗美学的精髓:在“基于天生”与“美学营造”之间,如何通过得当的取舍达到平衡,促进美的升华。
相关案例推荐
UShine予象空间
设计师相关作品

粤公网安备 44010602000156号