前言:
深圳套内36平的一室户,落地窗外有绝美的蓝天绿草坪~
业主是独居女生。工作繁忙,频繁出差,因此习惯了酒店式的房间布局~
让人觉得奇妙的是,业主跟我的审美有高度重合点:都对东南亚手工艺品有浓厚兴趣,喜欢曼谷The Siam酒店,美国的家居品牌Anthropologie,最后碰撞出了这个新旧融合的黑白之家
虽然是异地项目,但最后落成的家高度还原了设计本身,要感谢业主积极跟设计师的各种细节沟通,和强大的落地执行力
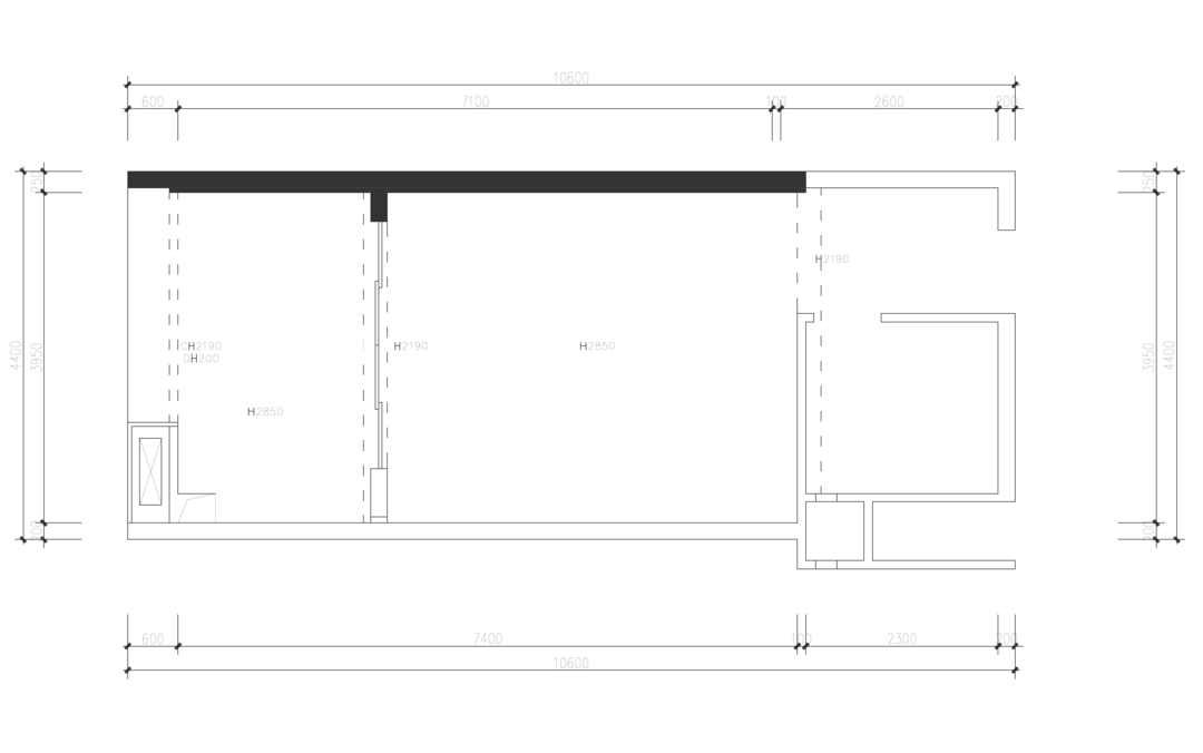
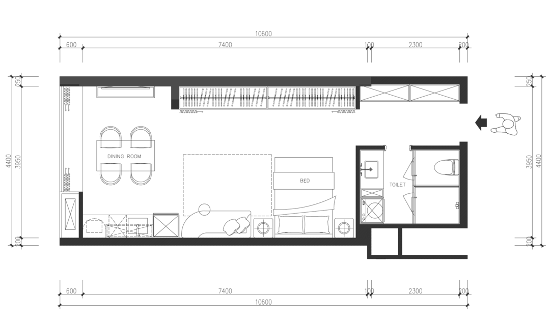
典型的一室户平面,我们主要从以下两方面入手:
1. 功能:原布局卫生间略小,不够做三分离,因此我们把卫生间的墙往客厅推了十多公分。这样卫生间整体尺寸舒适很多~
2. 收纳:客厅(又是卧室)做了整面衣柜,长度大概是4.6米,对于独居人士来说尺寸比较能装。进门过道也做了整墙鞋柜+收纳柜,尽量满足客户的收纳需求。
玄关部分的整墙鞋柜来自IKEA,省预算但看起来还蛮高级的!
地上的黑白花砖让进门好有仪式感!
宜家鞋柜安装时拍的内部照片~ 超级能装!还带灯带,如果大家想省钱DIY的话,可以用宜家噢~
鞋柜对面就是卫生间。因为做了三分离,卫生间门口就做成了门洞形式,保持空间的开敞,很酒店式公寓的设定。
满满复古感的洗手池区域!台盆是落地式,镜子是可以开合的~
打开后很有仪式感!牙刷用品之类可以放侧面收纳柜
黄铜浴巾架是意大利文CIAO,业主从anthopologie海淘的~ 挺有趣的
洗手池侧面洗衣机柜+收纳柜一体。充分利用小空间的每个尺寸!
汉斯格雅的白色花洒很高级,淋浴房和马桶区隔断用的极简黑边框。
这个纸卷+杂志架是也来自anthropologie~ 厕所读物也很重要!
客厅也是卧室~跟门厅和卫生间的南洋复古风相比,这个空间更简约。
很喜欢这个角度看过去,有一种建筑的黑白秩序感
床尾做了衣柜,用亚麻布帘遮挡,还蛮有氛围感的
床头柜是上海淘的旧家具,搭配丹麦的经典款花苞灯,又是现代跟复古的碰撞。
床头的花瓶和墙上的挂包给这个空间增添了一丝彩色。
挂钩也是专门定制
黑色护墙板是客户找厂家定制的。最开始我们想用黑色火烧板,但是太厚了,后来找了厂家打样出来,选了一款不错的再出大货
这款复古餐椅既是床头柜,又可以折叠成梯子,算是多功能使用了!
这个窗景绝对是全屋亮点~
复古玻璃落地窗是上海的复古老钢窗供应商做的,深圳那边找不到
推开门满眼绿色,这个体验也太爽了吧
这个角落也很美
傍晚景色也很美
傍晚开灯的场景,搭配三星画境电视,又是不一样的感觉!
可折叠餐桌,也可以用作办公桌
相关案例推荐
Homelab家研所

粤公网安备 44010602000156号