前言:
北国春城,岁月鎏金,万物递变。聚焦当代人居的品质焕新,央企保利择址长春,匠心构筑面向城市新生未来的时代豪著 —— 长春朗阅叠墅,其硬装设计和软装设计,由JLa设计集团及闳雅堂倾力担纲。
新时代的奢居内核,是超脱于物质标尺之上,对标塔尖人物的非凡精神境界。回归日常的居住幸福感,契合墅居主人公精神理想,实现体验感的终极“颠覆”。设计团队在本案构筑中,将体验建立在与圈层的社交纽带、与家庭的情感联结、与自我的精神归属、与日常的品质细节之上,雅呈艺术,融而共生,怡而和乐。
以都会情境解构雅痞精神,意式极奢之境的格调,在浮光掠影的日常里悄然进化 ——精神至上的纯粹生活脉络,由质感上乘的一器一物串联,愈发清晰可感。
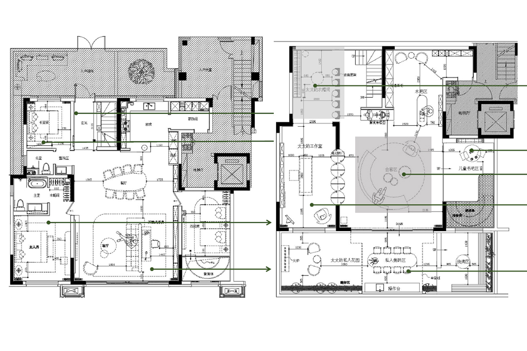
无用之美溢于场域,无声胜有声的艺术滋养精神,更接近奢的本质。负一层承载全龄互动的社交图谱,每个家庭成员都有私属的休闲和兴趣空间,偶有动线交集、聚会交互,和乐融洽。
室内器物精致,艺术水晶灯闪烁珠宝般质感,大理石温润、银具明净,物我相融时,此间一切散发着强烈的契合居者精神追求与审美品位的气场。
现代主义抽象画的一笔一划,人们于此感知沛然生活情调,回到身、心、灵皆得舒然的休憩主场。
以画笔丈量时光,女主人有时候信笔描摹几幅时装手稿。偶尔,她会将下午茶安排于此,知交密友叙话的优雅仪式,在这个理想的时尚秀场上演。
太空的元素延伸至游戏空间,这是独属于孩子的乐园。
每天的仪式感从衣帽间开始,映喻居者内心般丰盛而精彩的时尚疆域。
漫步于长廊中,挑选当天的服装造型、独特首饰与包包,不重样的日常,缤纷非凡的人生之旅。
相关案例推荐
广州闳雅堂空间文化策划有限公司
设计师相关作品

粤公网安备 44010602000156号