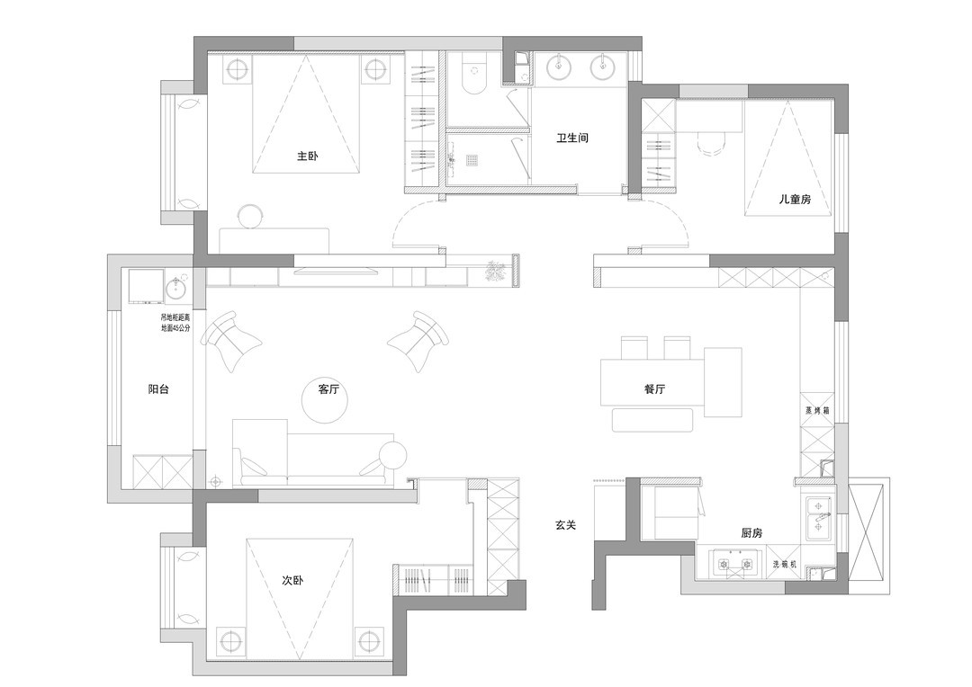
前言: 标准的小三房户型也是他们对这个新家的基本诉求,但原户型在空间划分上仍旧有很多不合理的地方:不够大的餐厨空间、尚不充足的收纳空间以及过多的墙体隔断,都成为建设新家的阻碍。于是,小规模的拆改与重新划分空间后,这个三口之间变得更加温馨舒适。
开放的空间和自然的肌理,为生活披上了自由而温暖的外衣。得益于充沛的自然采光,简洁的设计语言亦能带来丰富的空间体验。沙发墙以竹纤维生态木格栅进行修饰,自带线条,高低起伏的饰面营造出高级感。开放性的布局让这个家变得分外的自由和舒适
利用东南角小房间扩大厨房面积,打通餐厨空间,做开放式厨房,兼具中西厨功能,实现客餐厨一体化;重新划分卫生间与主卧收纳空间,打造双台盆,实现三分离布局,满足屋主高效生活的需求
餐桌后方做定制柜,中间留白作为水吧台使用,不堆砌复杂与华丽表象,空间按需分隔排布,给予舒适的尺度和恰到好处的美感。
敞开的空间打开了人的关联视野,家人之间可以彼此看顾,长辈和孩子之间始终保持着安全感,一种家的温度自然升腾。
餐桌后方做定制柜,中间留白作为水吧台使用,不堆砌复杂与华丽表象,空间按需分隔排布,给予舒适的尺度和恰到好处的美感。
敞开的空间打开了人的关联视野,家人之间可以彼此看顾,长辈和孩子之间始终保持着安全感,一种家的温度自然升腾。
餐厅延续整体空间的设计手法,但以不同材质的惊艳碰撞增叠画面层次,大面积的玻璃窗引光入室,室外自然之色框以为景,营造视野与心境上的双重开阔,光线与自然的合奏晃动情感的涟漪。
餐桌后方做定制柜,中间留白作为水吧台使用,不堆砌复杂与华丽表象,空间按需分隔排布,给予舒适的尺度和恰到好处的美感。
敞开的空间打开了人的关联视野,家人之间可以彼此看顾,长辈和孩子之间始终保持着安全感,一种家的温度自然升腾。
好的设计应该是合适的,是适度的设计。原次卫改造为开放式中厨后,这里成为家中卫浴的集中空间,为保障日常使用效率,做三分离+双台盆设计,功能区相互独立,不影响各自工作,同时以透黑玻璃门做区域分割,保障空间整体的通透感。
设计更注重自我的表达,而非刻意强求物欲的宣泄。设计更多是因“我”应运而生、自由、随性、鲜活、纯粹......
越是令人觉得简单舒服的空间,越是充满复杂缜密的心思。重要的是“一起生活”的感觉:对物品所具有的意义与背景产生共鸣,用最忠于自己的眼光进行选择,一点一滴地积累起自己的生活,让幸福感蕴藏其中。
设计更注重自我的表达,而非刻意强求物欲的宣泄。设计更多是因“我”应运而生、自由、随性、鲜活、纯粹......
适时地消隐存在感,避免过于强势塑造生活的干扰,拿捏“陪伴”的进退尺度。
越是令人觉得简单舒服的空间,越是充满复杂缜密的心思。重要的是“一起生活”的感觉:对物品所具有的意义与背景产生共鸣,用最忠于自己的眼光进行选择,一点一滴地积累起自己的生活,让幸福感蕴藏其中。
设计更注重自我的表达,而非刻意强求物欲的宣泄。设计更多是因“我”应运而生、自由、随性、鲜活、纯粹......
设计师将浅色用作全屋的基底。那是被阳光亲吻过的柔和色彩,拥有与生俱来、与人亲近却也容易被忽视的气质。这种低饱和度、低存在感的基底,是设计师刻意为之的设计:削弱设计的表达欲,更多凸显人的存在感。
将多余的墙体拆除,入户的空间变得更为开阔,左侧的定制柜体给人的第一感觉便是秩序感,平整的柜体内含巨大的储物空间,解决了入户收纳的问题。右侧放置换鞋凳和整面落地镜,生活的琐碎在入户这一方空间中便得以安置。
相关案例推荐
深白设计
设计师相关作品

粤公网安备 44010602000156号