前言:
本案位于厦门海沧马銮湾片区
开发商交付的是每平方3000元的精装房
由于达不到小姐姐对品质生活的要求
所以全套翻新
距离地铁不到1公里
厦门一中正对面
属于厦门优质学区房
这是小姐姐家交给我们的第N套房子设计啦
在换别墅之前这套拿来度假
气质优雅善解人意的美丽小姐姐便是本案的委托方
小姐姐还是单身哦
原开发商交付的是每平方3000元的精装房
由于达不到小姐姐对品质生活的要求
所以全套翻新
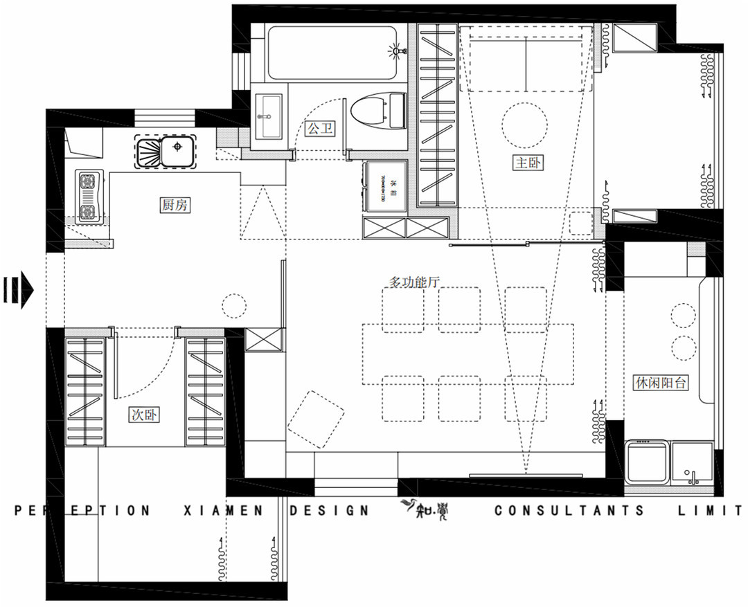
三居改两居
需求是
轻奢复古风
喜欢有故事的事物
细节控
对空间利用要求比较高
喜欢一切美好的事物
对灯光要求比较高
要有氛围灯
只需两房
卫生间需要浴缸
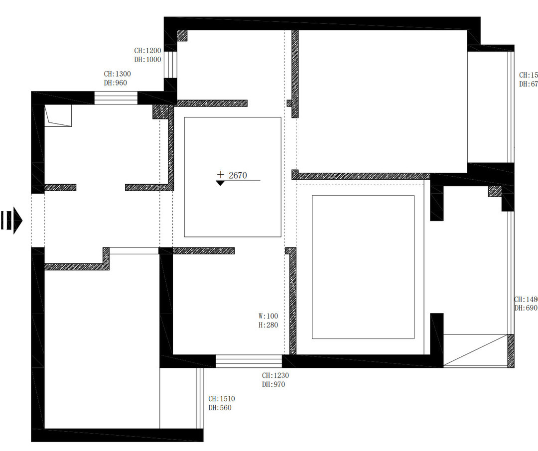
就需求平面做了如上调整
地板
玄关
艺术漆
摆件
门厅柜
隔断
玄关柜
绿植
挂画
鞋柜
灯具
镜子
瓷砖
入户玄关
绿植
地板
挂画
玄关
鞋柜
摆件
门厅柜
镜子
隔断
瓷砖
玄关柜
调整完优点是
动线流畅
空间合理
精致优雅且
储物功能强大
入户玄关
闺蜜轰趴
好友群聚
美食当前
对酒当歌
志同道合
谈论工作
剔除了传统的客厅模式
起而代之的是新型家庭模式
不小的客厅只放一张超大长桌
集客餐厅餐桌茶桌酒桌书桌等为一体
餐厅
灯具
客厅
艺术漆
隔断
轻奢
瓷砖
电视柜
屏风
窗帘
闺蜜轰趴
好友群聚
美食当前
对酒当歌
志同道合
谈论工作
剔除了传统的客厅模式
起而代之的是新型家庭模式
不小的客厅只放一张超大长桌
集客餐厅餐桌茶桌酒桌书桌等为一体
可坐可卧浪漫的主卧空间
次卧目前代替储物中
大厅效果图
厨房效果图
次卧效果图
主卧效果图
聆听·心之声
复古不是老旧
而是为居住者找到那种属于自己的
经得住时间考验的经典之美
生命对于进化的意义
早已融进艺术的脉搏之中
有一种神圣叫作毕加索开始作画
在情绪空间研究中
“复古&怀旧”是最受欢迎的话题之一
相关研究表明
引发怀古的历史物件
能起到镇静剂的作用
而追忆往事更能让我们获得o脑波
这是四种基本脑电波之一
它可以减少紧张
压力和焦虑的感觉
不知不觉中提高我们的免疫能力
而对于需要创造性工作的人来说
0脑波也能够更好地帮助自己
提高大脑的工作效率
《情绪空间》
一书中介绍了萧伯纳RRR37共振音乐
微宇宙共振音乐是一种立体结构时空动效音乐
能够激发有益的o脑波
激发人体的治愈功能
特别当我们聚类而居时
五感
(视觉、触觉、听觉、味觉、嗅觉)
通达地沉浸在复古的巨大能量体中
享受着家的复古之美
便开启了空间艺术的修复力
本案的复古氛围尽可能契合居住者的状态与气质
这必将成为一个极具能量的空间
家的古着之美
本身就源自一种强大的内在复原力
相关案例推荐
朱迪

粤公网安备 44010602000156号