前言:
如同衣如其人,家也将一个人的性格及审美志趣体现得淋漓尽致
设计理念:
1.水泥侘寂风的设计基调:女业主在阿里,男业主是建筑设计师,夫唱妇随的组合。男业主基于职业习惯,格外偏爱水泥质感。
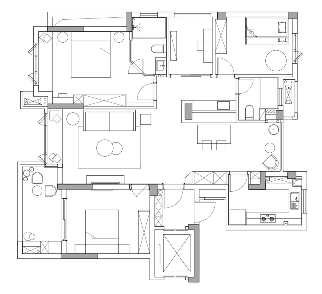
2.大刀阔斧的户型改造:原户型为4室1厅1厨2卫,最大的局限在于户型正中间的墙体,影响入户的视觉及客餐厅区域的通透性。通过户型改造最大程度实现空间的利用率及舒适性。
3.冷暖相宜的软装搭配:侘寂的高冷属性,往往会让家看上去比较冰冷。为了削弱整体空间的冰冷气质,在灯具、沙发等软装物件的选择上,多以黄棕等暖色系为主,以提亮空间的色泽,粗矿中带着几抹温柔。
玄关是一夫当关万夫莫开
一梯两户的户型,安全性强,电梯出来后就是属于自己的空间
电梯厅的位置摆放了成品收纳柜,一家五口的鞋子在室外就可以完成更换
入户之后的斜切置物台,让入户后的视野变大,同时降低了宝宝磕碰的风险
客厅位置没有在原始户型上做调整,但通过拆除储藏室后,整个客厅消除了逼仄感,视野变得更为开阔
灰白两个主色在这个空间诠释得淋漓尽致,仅用几处暖色来活跃气氛
客厅布局充分利用了阳台及飘窗引进的自然光
沙发靠主卧墙,有效保证主卧空间的安静
地面是灰色哑光地砖,与墙面的水泥艺术漆相呼应
电视背景墙用极简的方式来呈现,木纹饰面有效中和了水泥色的硬朗感,让空间柔和下来
在如此硬朗的空间内最好的选择就是布艺沙发
沙发背景墙的艺术漆在光下呈现出的斑驳感与男业主的需求不谋而合
冷感的空间要搭配黄光来中和
客厅顶部均匀分布的冷白光源保障日常生活需求
沙发旁的一盏落地灯洒下的黄光却是温暖岁月
阖家欢乐或是三五好友小聚的时候,这个角落永远是温暖的代名词
在这个项目中,设计师将空间的秩序感运用到了极致
各个空间功能各不相同,没有墙体的隔断,却能一眼分辨各自的边界
厨房在整个室内空间占比偏小,但是俗话说麻雀虽小五脏俱全
在功能齐全这件事上可是毫不含糊
玻璃门的隔断让厨房空间的光线更充足
做饭的同时还能时刻注意客餐厅的变化
厨房空间有限的情况下,U字形的设计是最合适的
可以扩大操作台面,同时洗菜切菜配菜有地儿可放,微波炉电饭锅也有专属位置
明火烹饪区和碗盘收纳一地儿解决,顶部和底部橱柜收纳绰绰有余
还能放进双开门冰箱,满足一家五口的生鲜采买收纳
一盏壁灯将视线指引至餐厅
原餐厅位置空间有限,也是借了舍弃储藏室的空间,让餐厅成为了餐厅
拆除原结构中的阳台移门,将阳台纳入餐厅空间,增加采光面积
考虑到一家五口的日常用餐以及空间的舒适感
从客卫的墙面延伸出卡座,原本要做成收纳型卡座,但为了颜值还是做了取舍
入户后右侧的墙面,除了做了电器高柜外,还预留了餐边柜
让餐厅的收纳空间大大增多
餐厅灯像一朵朵含苞待放的花
黑色能更好的融入灰白的空间
金属的材质与装饰画和餐椅材质相呼应
结构分明、井然有序,是男业主多年职业习惯塑造的个人性格,
也成为本次作品最鲜明的第一眼印象
如同衣如其人,家更可以是一个人性格、习惯的集中体现
卧室是格局分明的居家感
主卧、次卧、儿童房,三个房间各有各的侧重点。不同于客厅的冷静自持,卧室的色彩更为明亮丰富,墙面用色彩来点亮
虽然将储藏室舍去了,但在收纳空间上分毫必争
主卧没有安装电视机,整面墙都是收纳柜,顶天立地的柜子不仅收纳量巨大而且易于打扫
给女主人空出一小部分的梳妆台位置,平常也可作为办公桌使用
虽然主卧墙面采用了孔雀蓝,但整体色系还是沿用灰白加上黑色,床头背景用了灰色的墙布,甚至床头灯都是灰色地球的模样
地板颜色与客厅电视背景墙一致,避免家里有太多的色彩造成混乱
窗帘、床品的灰色呼应也是有心了
次卧藏于电视背景墙后,用橘色来点缀
虽然是老人居住的空间,但对于色彩来说更为重要哦
活力阳光的橘色让老人每天精神百倍呢
因为用了比较硬朗冰冷的色系和设计手法,所以除了卧室,其他空间都做得通透
书房用玻璃移门来代替墙体
书房内就是超极简空间,带有屋主的风格标签
一张书桌、一个艺术书架,打造居家办公场所
颇有大漠孤烟直,长河落日圆的气概
稳稳地立住了书房的气质
主卫是属于男女主人的私密空间
考虑到日常工作的辛苦,且空间大,所以设置了浴缸
日常外出归来,洗尽铅华之后,泡个澡放松身心
台盆不大,但是两个人和宝宝使用已经绰绰有余
台盆下方是收纳,可以收纳日常清洁用品
客卫采用的是干湿分离的设计
台上盆不影响收纳柜的收纳空间
与餐厅卡座连为一体的高低台面,给宝宝创造了摸爬滚打的空间
台面操作空间大
采用半墙的设计,可以与餐厅及时呼应
也顺利的引进了餐厅的自然光,让干区变的通透不压抑
客卫采用灰色水磨石易于打扫
淋浴房挨着窗户,拉上百叶帘可以有效保证私密性
平常多开窗通风,可保持卫生间的干燥
阳台实际上是连通客厅和次卧的一个通道
这个阳台作为生活阳台,承载了日常洗晒的功能
除了大人的洗衣机烘干机,还有专门为宝宝准备的洗衣机
完美定制的柜体尺寸,让电器整齐排列
方格花砖和绿色墙砖添加一丝活力
相关案例推荐
意森空间 YES DESIGN
设计师相关作品

粤公网安备 44010602000156号