前言:
业主宋姐在2019年的时候就找到我,让我帮她把她在西门的一个大套一爆改一下,好让大女儿过几年上来念小学使用。我在收到宋姐后第一时间去勘场测量,之后觉得空间确实比较局促,所以就迟迟没有推进;等到去年联系我的时候,宋姐的老二已经怀在肚子里了,所以他们将原来的大套一卖掉了,置换了一套在草堂附近的三居室顶层!
其实设计之初,我们想的美美的,将顶层的花园露台区域搭建进入到室内可以完完整整规划一个套五,上有花园下有游戏屋,能满足两个娃娃一直在这个房子成长和生活~然而美梦也就只能想想~多方协调未果之后搭建无望,就只能将希望寄托到第一步先把电梯安了!老房子七楼真心爬楼累哇~
目前阶段呈现的平面布置其实只是我设计的一层平面布局部分,因为老大要念书了,老二要准备出来看世界啦,所以也不能一直拖着房子~关于顶层二层的设计就先搁置,希望宋姐能早日call我去把二层设计了,我随时准备着!
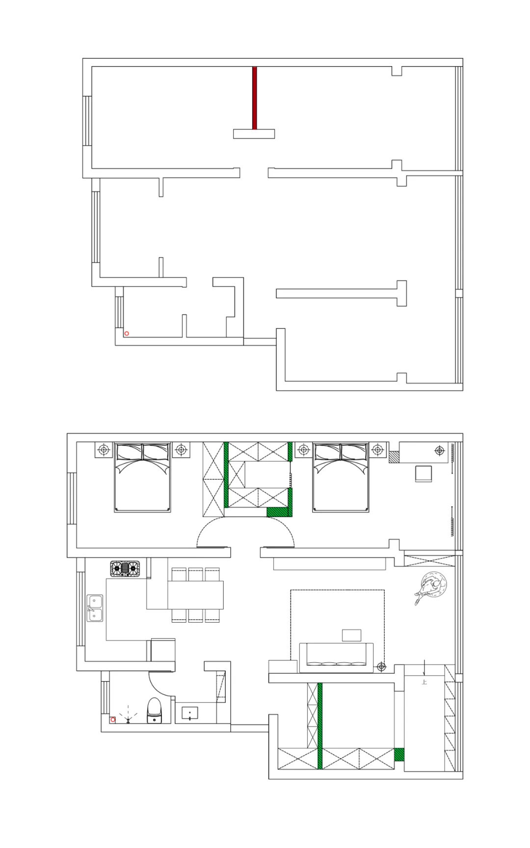
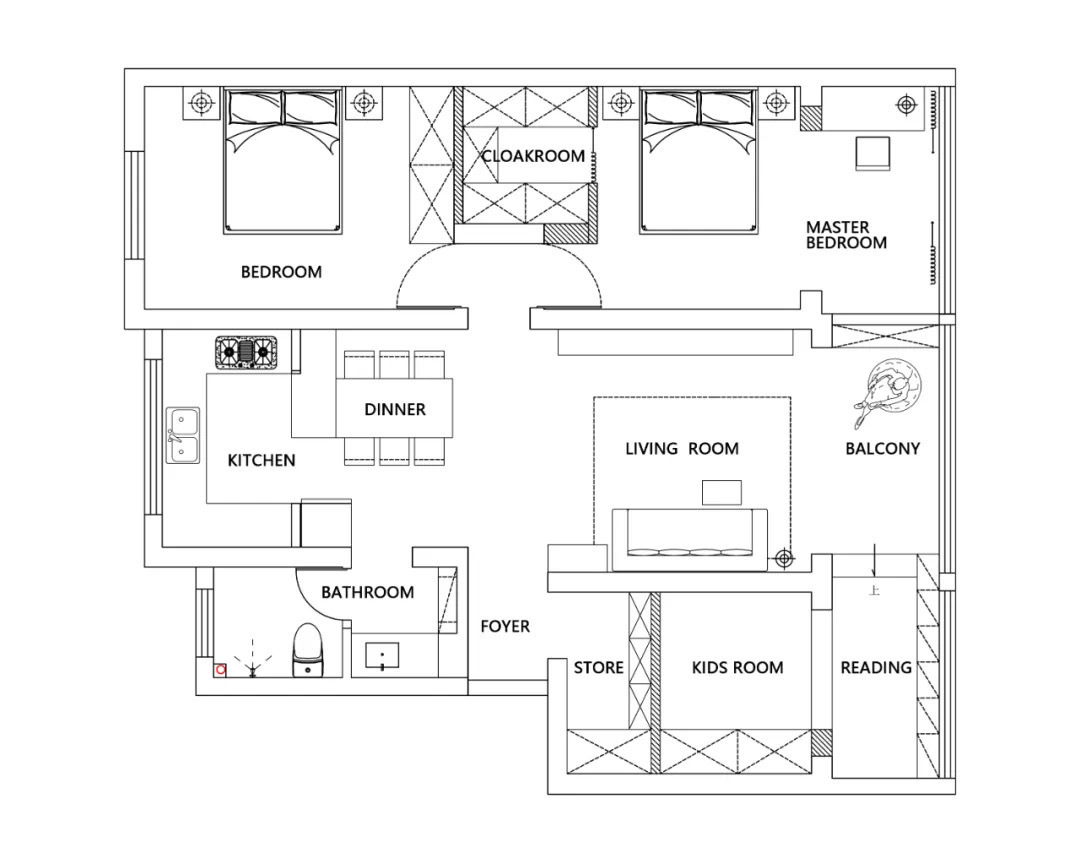
这套房子原本是国安局的内部分房所以房屋结构非常扎实,加上是顶层结构梁多(图2)导致房子所有墙垛动不了;但庆幸的是两个卧室的中间衣柜墙体是薄墙可以拆除;厨房和餐厅位置的尺度比思思姐家好太多!除了以上问题整体房子户型很大气方正没有太大问题。
因为原始户型比较规整并且结构比较扎实大部分墙体都不能动,那么我就只能在原平面基础上做加法,满足功能的基础上做了一下几个方面的微调:
1⃣️ 入户部分,因为开门既门厅,考虑刚有老二,出入户不光要考虑鞋子收纳还要考虑带娃的推车还有其他大建物品,所以就将原本的入户右侧的小卧室一分为二,一部分给门厅做了一个鞋帽间;
2⃣️ 餐厨部分,餐厅虽然比上一个案例的餐厅尺度开阔,但是要做到备餐柜+中岛还是难上加难,所以退而求其次,将厨房做U型岛台,岛台连接大班桌一个L型的开放式餐厨一体呈现出来了;
3⃣️ 游戏屋/榻榻米室,游戏屋安排在鞋帽间隔壁,通过使用实心墙+玻璃砖来呈现隔墙;这个房间主要作为多功能使用,第一
因为拆除墙体非常少,主要就是依靠增加墙体来做设计划分空间;另外想说下墙垛的设计,因为确实这个案例中的墙垛都无法拆除,所以我在做设计的时候做了弱化墙垛的方式,没有做任何的门套线,将强度与柜体有机的的融合在一体从而达到弱化墙垛的目的。
因为整体户型改动相对比较少在颜色和风格上,我跟宋姐探讨也是一拍即合,她是一个独立大气的姐姐,特别喜欢自然原木质感的东西,但是我不想把风格做的太日式,所以色彩和材质定位的时候就把空间色调略微有点儿侘寂的调子,质朴的东方感,简约但有内涵。
想说的是原本房子进门就自带吊顶,为虾米喃?在储藏间可以找到答案!在吊顶位置修房子人预留了一个开口,可以放些物品进去!老房子真的充满了奇思妙想!入户门推荐:米家防盗(含监控,密码锁,甲级安全门为一体)性价比之王!
在紧挨门厅的房间内选用了宜家的开放式储物系统,整体安排鞋帽包包,还有一些不常用的物品囤放。
还是先来一个改造前&改造后的对比图~
客厅选择无电视墙的设计,基本选择一组精致的柜体作为收纳和装饰使用;另外在阳台位置设计一组杂物收纳柜弱化墙垛部分~
沙发选用了MUJI的皮制沙发,跟整体屋子的色调一致;沙发旁边的壁灯被施工方吐槽了,说为什么不提前预设一个点位,非要搞一根线,宋姐跟我当时听着,哈哈哈大笑,咱们就是要这个feel~
客厅的架子也是宋姐特别找人定制的实木款,不是vintage款;正儿八经的vintage架子基本都是贴皮的宋姐不喜欢贴皮的质感,她更喜欢实木家具的温暖和质感~
餐厅改造前&改造后图~
餐厅的原木餐桌也是特别定制与吧台衔接在一起,搭配的餐椅都是宋姐原来家里带过来的~
冰箱原计划是放在厨房内部,后期摆放的时候确实略显局促就移动到餐厅的角度,厨房内部安排的开放式置物架也是好用~
餐椅都是宜家的经典款,长凳是宜家一款限量款,橘色和红色让整个空间显得更加有生命。
女主人闪亮登场了哈,厨房的小水帘也是特别根据宋姐的身高,反复确认后安装的;厨房位置看出去是一个学校,视野也挺开阔的绿意盎然~
特别说说这束向日葵,宋姐的老公在每年她生日的时候都会送上一束,当天正好我们在新家挂窗帘,花就送到了!因为这束花让整个家注入了家的味道~
厨房整个柜体也是实木定制,表面做木蜡油处理~保留了原木最原始的质感。
小竹椅子我自己小时候也一把,特别有回忆;注意此刻时间是动画片时间,两小只正在专注的看动画片!
房间内侧平垭口位置做了一排书柜,等小朋友慢慢填满它们;这个角度也可以看到在书房和鞋帽间中间是做了2片玻璃砖的,增加鞋帽间的采光,也让这个房间更有造型!
两小只正在全神贯注看电视中
两小只正在全神贯注看电视中
主卧的衣帽间隐藏在窗帘内部~
床头柜也是从老房子里搬过来的,宋姐是一个念旧的人喜欢的物品都是自然温润的~
床品也是亚麻的天然质感,土红色搭配绿色一点也不觉得突兀。
主卧和次卧中间敲掉的墙体给主卧做了一个步入式的衣帽间,因为想控制预算,就没有去做门。
这张刚安好灯的时候的图,可以看到衣帽间的整体效果。
衣帽间的帘子特别选用自然的纺织沙沙,特别有手工的质感~
拍照的时候正好有风,风吹动帘子;一切是那么自然和惬意~
将两个卧室都回归到比较纯粹的功能上;次卧的灯我特别喜欢是宜家的宜家灯,但是大多数人觉得粘灰,但是宋姐二话不说带回来安上了~
床头设计了小壁灯,选择了原木搭配百褶页的款式 床头设计了小壁灯,选择了原木搭配百褶页的款式~
将原本次卧嵌入的衣柜给了主卧,所以在次卧的侧面做了一组衣柜~
窗帘是手工针织的千鸟格,等这款窗帘特别久,但好在安装上去效果喜人~
相关案例推荐
住三设计
设计师相关作品

粤公网安备 44010602000156号