前言:
业主找到我们时,还是在校大四的学生,需求就是在家要嗨。所以在方案中,我们尽量把公共区域做的视野开阔,互动性强,适合朋友之间的聚会,游戏等。
效果上,我们用微水泥、木饰面、岩板这些材质的配比搭配提升空间的质感和细节的部分。其实,任何高级而自由的设计,都是跳脱了外观上的华丽且不实用的模式,而是简约的风格为基础,从细节处打动人心。
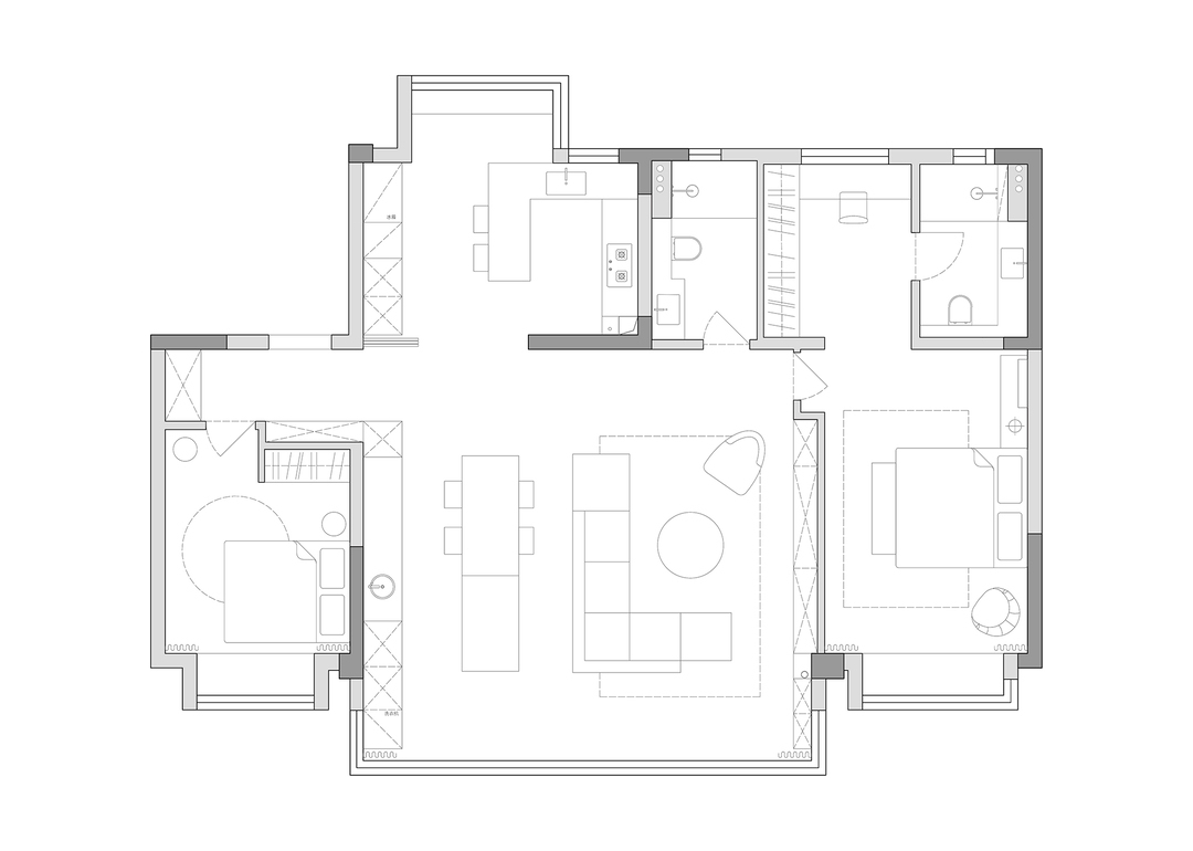
原始结构的餐厅和厨房都非常的小,不能满足业主轰趴,朋友聚会,在家游戏的需求。所以,舍弃一个卧室,设计成客餐厅的大横厅,同时厨房也可以增加早餐、简餐的岛台功能。
原本的入入户门对着是次卧的部分门洞位置,视觉感受很不好,借用一点次卧的空间,给玄关处造了一处景,回家于我们来说,是走向一个自由舒适自在能做自我的空间里。第一眼的心情当然是要愉悦的。
客餐厅的设计是改造布局后的横厅,是为了给业主创造一种想要的长期生活的空间状态。顶面弯曲流畅的线条弱化拆除后出现的比较低的称重梁,而大块面的木饰面增添了空间的秩序感。创造简约,放松,自由的生活空间
完全嵌入式的冰箱,黑色的岩板和微水泥质感的顶面建造了有品质感的厨房。简餐台也给生活提供了便捷,提升了厨房的气质,热衷于营造一种整体感。
卧室
一个大四学生的卧室套间,秩序感的黑色格栅背景是卧室的特征,也是主人性格的彰显,是简约和品质的表现。
相关案例推荐
行一空间设计
设计师相关作品

粤公网安备 44010602000156号