前言:
屋主夫妻二人非常有文艺气息,男主人喜爱茶文化,有很多茶品的收藏,女主人爱好钢琴,夫妻二人闲暇时还会一起进行一些简单的手作创作。我们设计的初衷就是让两个人的美好浪漫都找到各自的归属~
茶亦醉人何须酒,书自香我何须花。
让我们一起走进二人的写意空间~
一楼原始平面图
一楼设计平面图
二楼原始平面图
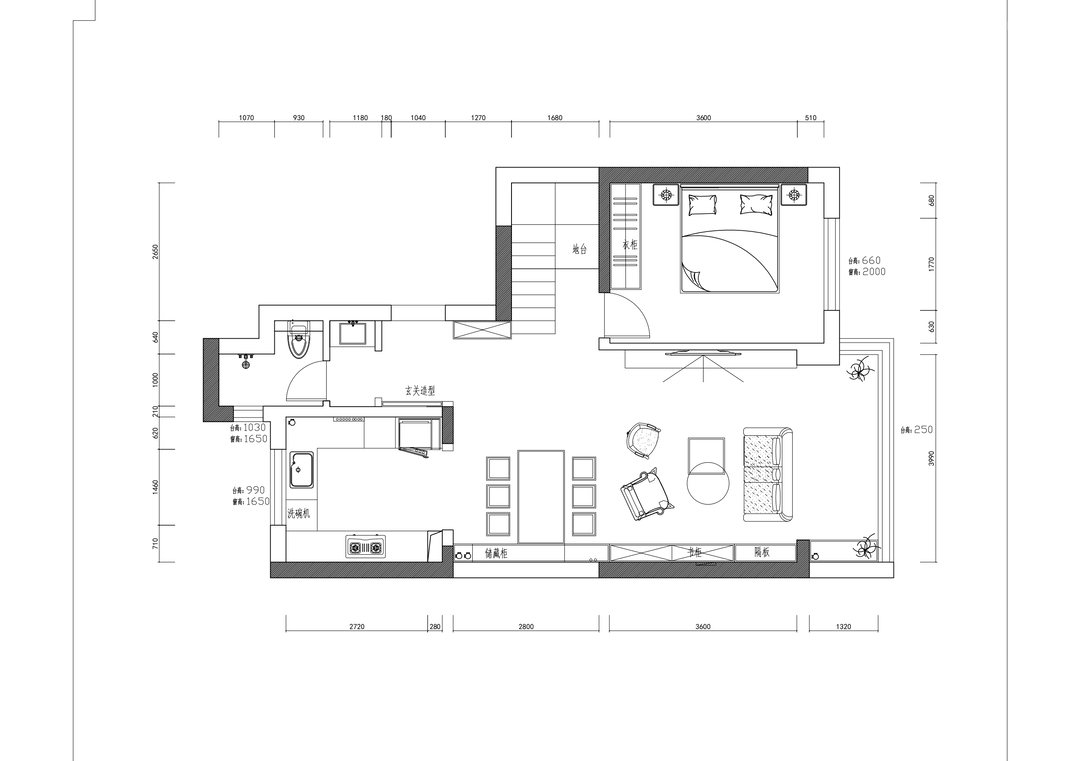
二楼设计平面图
★户型分析:
1、入户门正对厨房侧墙,走道空间狭窄,没有玄关;
2、二层主卫和客卫空间较小,客卫离楼梯口较近,空间压迫感较强;
3、整屋空间分割较为细碎,各空间实际使用面积较小,收纳空间难以规划。
★空间改造重点:
1、入户门对面设计玄关造型,东侧增设通天玄关柜,增强玄关的实用性;
2、将二层主卫与客卫合二为一,客卫改为开放式干区,增强空间的通透感;
3、将原来主卧与主卫之间的过渡空间改造为独立的衣帽间,增强二层的收纳空间;
4、客厅增设整面柜体,用于男主人茶品的收藏及展示;
5、 将二层阳台封闭改为独立的家政区,清洁工具的收纳,衣物晾晒都可以在这个空间完成,整体空间更加整洁。
入户门正对面设计了玄关造型,入户门右侧用拱形门将原来客卫开放式干区封闭起来,这样即明确了玄关空间的存在感,保证了客卫的私密性和整洁性,也增强了玄关的设计感;拱形的设计有向上延伸的感觉,让入户的空间更显高挑。
入户门左侧增设通天玄关柜,满足的入户的收纳需求。
客厅的沙发区摒弃了传统的L型沙发,采用围合的摆放方式,无论是夫妻俩的二人世界,还是和家人朋友的每一次相聚,面对面的交流都会更加惬意~
电视墙用薄型石材营造出水墨的意境,让整个空间更具山水写意的氛围感。
电视墙对面的空间设计了整面的柜体,满足了男主人对茶品和书籍的收藏与展示。
二层原来的主卫和客卫空间较小,客卫的北墙紧邻楼梯口,空间压迫感较强,改造后两个卫生间合二为一,客卫变身开放式干区,空间显得更加通透,主卧和儿童房使用起来也非常方便。
新中式
绿植
挂画
装饰画
灯具
摆件
饰品
现代简约
床
床头柜
卧室
主卧采用地台的形式,吊灯和壁灯的不对称设计让空间更显灵动。
地台对面设计了衣柜和工作台区域,屋主二人可以在这里进行喜爱的手作活动。
儿童房采用了榻榻米的形式,顺应飘窗中央空调的管道位置设计了床头书架和收纳柜,床头书架采用拱形造型,与墙面的拱形色块呼应,增加了空间的层次感,让房间更显童趣。
钢琴是女主人的爱好,在还没有小宝宝之前,儿童房也是女主人的专属琴房。钢琴背景墙采用拱形设计,弱化了黑色钢琴的棱角感,用弧度柔和了空间,打造出类似于剧场效果的浪漫气息。
相关案例推荐
拾己空间设计
设计师相关作品

粤公网安备 44010602000156号