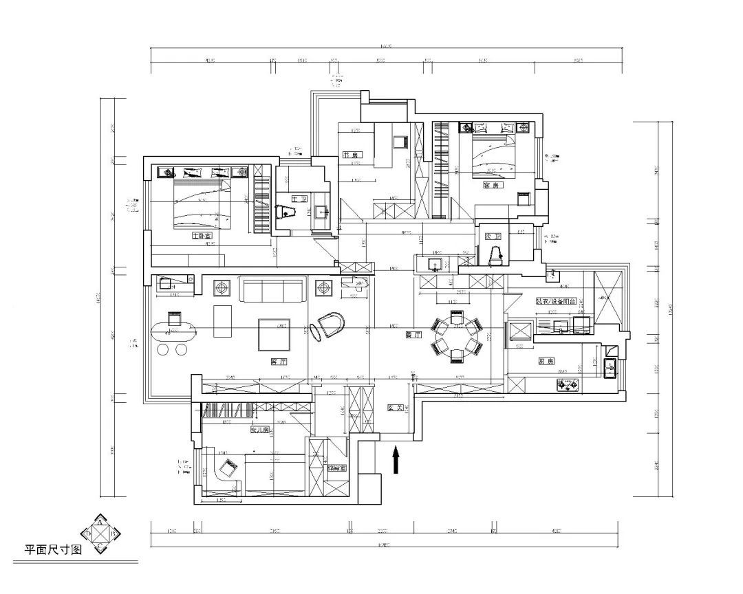
前言:
今天为大家带来一套现代轻奢风格新作,男女主人均为小学老师,女儿十岁,常住人口为三名。他们希望家首先是要实用,有尽可能多的收纳空间,其次有较高审美需求,在空间表现上希望温馨舒适又不失艺术格调。
温和与沉静是这个家的主调,开阔的空间拥有着优越的采光与视野。稳重的大地色配合大理石、金属、皮革、棉麻等多种材质,极富力量和层次。
空间布局张弛有度,木饰面温润的色泽将暖意带入其中,以“静”为名的艺术妙笔记录下生活的美好,打造一个生活美学与艺术氛围相互平衡的居住领域。
客厅是一个采光良好的方正大空间,明朗、大气,稳重的大地色烘托温和而亲切的人文气质。
顶面黑色不锈钢和磁吸轨道灯形成线条延伸感,增加了视觉层次。沙发背景植入小法式护墙混搭,与大卫雕塑组合,为空间注入灵动与格调。自过道口顶端特意拉出一道折线灯带,勾勒个性的艺术气场。
壁挂电视与收纳背景合而为一,外观利落整洁。储物柜精准分配开闭比例,收放自如之间,稳妥了实用机能,协调了日常节奏,让设计感恰到好处。
空间平铺的温厚色泽以稳重低调的问候与居者发生情感碰撞,含蓄内敛兼具东方美学韵味,一呼一吸之间将温度与关怀深入人心。
阳台处设计品茶区,清冽的茶香伴着温煦日光,萦绕此间的只有言笑晏晏的自在感受。
主卧之内所流动的情感,温暖而真诚。艺术感与生活感交融,营造出亲切而闲适的氛围,分分钟便能抚平主人一天的疲惫。
床尾斗柜延伸出梳妆台区域,绿植、画作、小雕塑,共同围构出一角小小的艺术天地。
客卧的气质同样雅致非凡,光线流连入内,盈盈散发着温润平静的质感。右上角的个性挂饰就像是悬浮在半空中的月亮,让夜晚充满浪漫的情调。
以马卡龙粉为主色调的女儿房,睡眠区、学习区、休闲区、收纳区被有序安置,保障孩子能够拥有一个完善的成长环境。房间内也有许多孩子喜爱的童趣元素,看,墙上这只头戴小花的兔兔是不是就特别地可爱呢~
自然亲肤的面料给予孩子最大的舒适感受。
相关案例推荐
浙江南鸿装饰股份有限公司
设计师相关作品

粤公网安备 44010602000156号