深圳鼎胜林栖园,复式装修案例,户型图200平,现代、简约、侘寂,旧房翻新重新装修,一站式整装服务
前言:
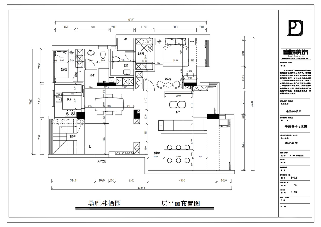
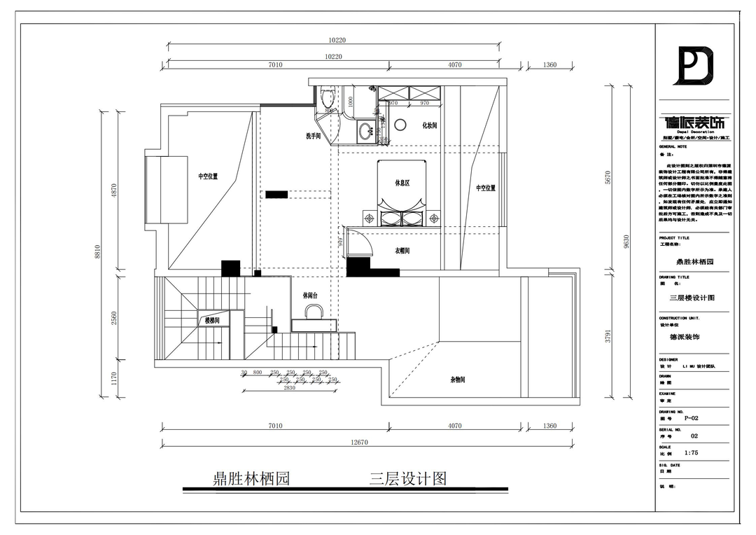
项目名称:鼎胜林栖园
项目地点:深圳市南山区
项目需求:旧房重装
项目面积:200㎡
风格定位:现代、简约、侘寂风
整装团队:德派装饰&君尚软装&摩洛卡家居
设计理念
以质朴取代奢华,用细节透露出精致,简约自然的色彩,还原生活的本质,
在摒弃生活的琐碎焦灼,释放自己心中对温柔与艺术的美好憧憬
从大自然中汲取灵感,大面积使用干净纯净的浅灰色系极简造型,配以温润自然的实木元素,营造自然质朴的空间感受,赋予柔和、自然、宁静、亲和的生活氛围。
设计图
客厅中,设计师选用白色与暖灰色作为空间的主色调,营造了一个温馨舒适的居住环境。整体强调室内线条与平面的简洁性,讲究软装元素间的优雅搭配。
大面积的落地窗,给人明亮的视觉感受,打造干净而纯粹的空间氛围。
窗外的绿色植物为客厅增添了一抹色彩,富有自然美感。浅灰色的布艺沙发搭配同色系电视墙,展现质朴又优雅的空间
基于节省空间的需求,为电视区定制一组简约的吊柜设计,尽可能地发挥出墙面的收纳功能,减少视觉负担,同时凸显出整体空间的通透感。
客厅与喝茶区位于同一空间,清新的色调给人舒适而惬意的感受。木质的茶台,细腻的纹理为空间增添了自然气息,搭配中式的座椅,简练的配色展现了空间极简的基调,墙面玫瑰金的艺术装饰,精致而有美感,与茶台的金属脚相呼应。
造型极简的楼梯奠定了简洁而纯粹的空间氛围,简约的线条展现了现代主义极简下的几何美感,展现了大气而有格调的空间。
相关案例推荐
德派装饰
设计师相关作品

粤公网安备 44010602000156号