前言:
本案是单室套公寓,原来只放一张床,包含一个卫生间作为出租房使用,因为是商业公寓,6部电梯,所以得房率非常低。
屋主觉得住得太压抑,现在想把它改造成工作室,不要床,需要让空间显得大,而且需要功能齐全,包含工作办公区、洽谈区、展示区、书架、大收纳区、休息区、茶水区、以及宽敞的卫生间。
设计师了解客户的需求后,看了户型要求虽然多但是好在户型方正,没有多余墙体采光非常好,可以随意发挥,设计师考虑了所有的需求决定大改,在满足需求的同时,充分利用光影,让人清晨迈入工作室门的一瞬间,感觉一米阳光就是半亩花田,虽刺眼,但能感知光的暖,馨香了心房,墙上的一米阳光醍醐了半醒的人。
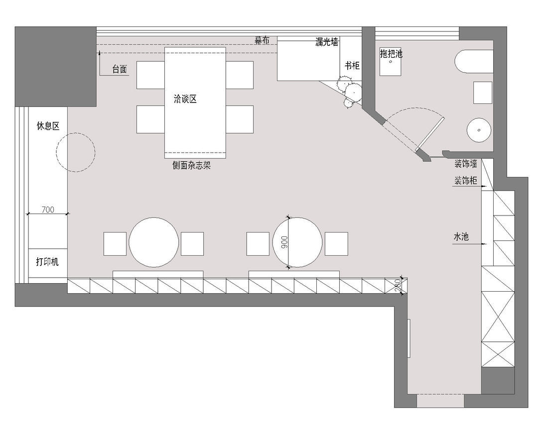
原户型平面图 客户需求:改造成工作室,不要床,需要让空间显得大,而且需要功能齐全,包含工作办公区、洽谈区、展示区、书架、大收纳区、休息区、茶水区、以及保留宽敞的卫生间。
改造后的平面布置图 布局优化:1,进门较宽,右手做满墙收纳柜,茶水区嵌入收纳柜中。 2,卫生间拆了重建,改门向让动线更合理流畅。 3,在没有窗户的墙上做满墙书架,做嵌入式卡座,让功能性与空间结合。 4,在西部窗边做收纳的大卡座,兼顾飘窗休息区。
进入工作室的一瞬间,映入眼帘的是黑白灰的交替,进门右手边整排的收纳柜满足收纳需求,配上深灰色的柜门,上下色调一致,柜子下做悬空,让柜子显得轻盈不笨重。柜子中间做洗手台,完善功能,上下配上线型灯烘托氛围。正对面卫生间墙体做斜面,有视觉的引导,同时扩展空间,墙体中间镶嵌长虹玻璃,捕捉光影,让色彩,光影,布局错落有致。#玄关#收纳柜#洗手台
卫生间的隐形门开在斜面墙体上,避开正对门口,公司标识上的小射灯,柔和而又有氛围。#灯#线性灯#氛围灯#隐形门
卫生间虽然切了斜角,但内部空间依然非常宽敞,既然宽敞我们就不能将就,地面和墙面选择水磨石,斑驳而又色泽,艳丽光洁,背景选用马赛克砖,中间镶嵌线性灯,让背景墙显得时尚高级。#卫生间#马赛克#水磨石#线条灯#百叶帘#置物架
在设计中,设计师充分利用光与影的结合。卫生间里线型灯像是在空间中开了一扇门,一扇光之门,在夜里那光是如此的光艳夺目,使我们忽略了周围的阴影,反而正是有了阴影,我们才憧憬光明,有了阴影的衬托,才使空间充满了时尚的高级感。立柱式洗手台上方是水滴式的水龙头,既有特色又很好看#镜子#卫生间#马赛克#水磨石#线条灯#百叶帘#置物架#台盆#水龙头
空间不大,所以不能浪费,卫生间外面墙角处做了个小小的展示台,利用死角衬托氛围,展示台边是黑色的轨道型射灯,灯头可以上下移动,灯头磁吸的,可以随时取下。右边暗色调的柜子中间,一抹黄色灯光,像是黑夜里的那盏灯,温暖人心。#射灯#隐形门
左边卫生间到展示柜的整体视角,卫生间切了尖角,使空间过渡自然,说大吧,它宽敞而又不空旷,说小吧,内容丰富又不闭塞。
从进门方向过来,通过斜面墙体视觉引导,自然而然的看见了展示区,先是视觉冲击,然后是赏心悦目,视觉是会影响心情的,美美的一天从现在开始。
从这个角度看过去,左边是米白色微水泥墙面浑然一体,空间有限,右边整个墙面做了书架和卡座成为洽谈区。让有限的空间功能齐全又不显的拥挤。#桌子#椅子#无主灯
洽谈区原生态裸露风,书架整面都是桦木多层板打造,未涂清漆,未封边,纯粹的原木色。#书架#收纳柜#卡座#桌子#椅子#灯
洽谈区背景上下做收纳柜,中间部分是书架和展示柜区,靠近桌子区域做嵌入式卡座,扩充空间感。卡座上方是线型灯,补充亮度的同时又美观。原木色在这个白色空间里显得柔和舒适且温馨。在这样的小空间中做了2个对称的洽谈区,让这面墙糅合了功能、收纳和美观。#书架#收纳柜#卡座#桌子#椅子#灯
洽谈区木色加白色配上灯光,环境让人感觉非常的舒适。#书架#收纳柜#卡座#桌子#椅子#灯
卫生间左边是空调外机位置,为了不浪费空间,空调外机位置用砖砌成展示柜台,台面用活动的大理石盖板做成,盖板可以掀开,方便空调外机检修更换,大理石台面方便清理,展示柜上可以放上喜欢且精美的装饰摆件。#展示柜#灯
展示柜上方右边是管道,为了管道的包边不生硬,特意做了弧边造型。上方顶部安装了个360度旋转的射灯,想照哪个摆件都可以哦。#灯#装饰品
背景开了2个方形小窗,不要小瞧这2个小窗哦,它不仅是背景,还可以采一米阳光,框一方景色哦。而在这当中光与影似乎绽开了一朵青莲,散发着清雅的幽香,一抹绿意画了满城烟沙, 斑驳的影碎了一地,淡淡花香和繁茂的枝叶塞满了光与影的交织里。#灯#装饰品
镜头一转就进入了办公区了,整个办公区采光非常好,整体无主灯设计,简洁明亮。#无主灯
办公桌是桦木多层板手工打造的,简单舒适。办公桌上方留了一盏暖色小吊灯,让加班到很晚的小伙伴依然能感到阵阵暖意,温馨。#办公桌#吊灯
虽然是工作区,但是在光影的世界里,依然能让一颗已劳累的心驻足一下,给心灵一个栖息的竹屋,安享几分清淡,不觉乏味。#办公桌#吊灯
一步一影,如梦似幻,交织着,倒是色彩斑斓呢。坐在角落少了些世外的吵杂,试着体会着高僧们的云水禅心,悟一悟自己的人生禅意,体会到便是银碗盛雪,体会不到便是缘悭。#卡座#收纳柜#茶几#百叶帘
办公室边的大窗户也不能浪费,窗边做了一排卡座式的飘窗柜,空间小,这么棒的采光和风景不利用起来太浪费了啊。飘窗柜上做了曲面设计,配上下面的镭射纸,充分利用光影折射营造空间氛围。#卡座#收纳柜#茶几#百叶帘#办公桌#吊灯
飘窗柜可以是收纳区,也可以是休憩区,还可以是办公区和洽谈区。空间功能性的结合,是很好的选择哦。#卡座#飘窗#收纳柜
相关案例推荐
山舍建筑设计
设计师相关作品

粤公网安备 44010602000156号