前言:
屋主是一对年轻的情侣,打算在今年完婚,去年8月交房后就开始着手寻找合适的设计公司,所以这是一套承载着业主对未来生活期待的婚房。前后对比了几个月后,最终决定选择深零,首先要感谢业主对我们的信任。
女业主是一个很有想法的人,她希望她的家可以美丽又实用,整个装修下来基本上都是自己做的决定,父母没有插手,老公也很支持。
后来听她说,她最终在一众设计公司选中我们的原因,除了演示效果图长在她的审美上外,还有一个原因是因为设计师的衣品很对她的口味,果然女孩子都是视觉动物~~
原始户型图
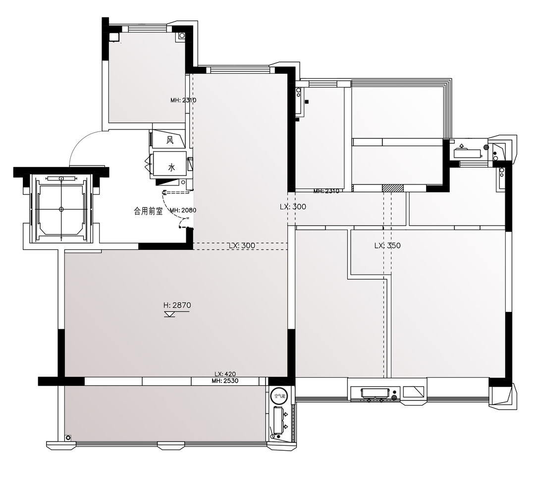
改造后户型图
这是一套面积130㎡三室两厅的户型,原始布局还算规整,所以我们在户型改造上没有做过多调整,重新规划布局了客卫、走廊以及两间卧室的空间布局,在更契合业主生活方式、提升居住使用感的基础上,巧妙增加了一定的收纳空间。
改造亮点:
1、拆墙,阳台并入客厅,扩大面积;增西厨,丰富空间功能
2、重新布局客卫,将洗漱台外移,优化动线实现干湿分离
3、改变主卧门洞朝向,在进门处设L型衣柜,重新布局规划主卧和相邻次卧空间配比,扩大走廊面积,实现收纳自由;并将北卧室并入室内,扩大使用面积,满足客卧需求。
浪漫与温情色彩搭配、材质工艺,构成了这套130㎡婚房的外在面貌。
冷静但绝不寡淡,是对客厅的第一眼印象。
因为原始客厅是一个横厅布局,为了优化整个空间的视觉舒适度和使用性能,我们拆掉了阳台的隔断墙,将其并入室内,保证了客厅充足的采光条件。墙面用调浅的杏子灰作为底色,在自然光线的调节下,使整个客厅变得明快且安宁。
借助横厅优势,在沙发后新增一个西厨区域,并用吧台隔开,将阅读、休息、互动、收纳融为一体,丰富居家使用功能。吧台和柜体用原木色打底,不仅清爽了空间氛围,也增加了视觉层次感。
在实用和颜值之间,成年人不做选择,通通All in!
打通的阳台依旧保留了家政功能,『洗衣机+烘干机+收纳柜+水池』的布局模式,不仅优化了家居动线,同时也提升了空间的利用率。被隐藏起来的电动晾衣架后期使用起来很方便,也保证了整体美观度~
阳台和西厨之间用长虹玻璃隔断隔开,起到一定的遮挡作用,还能明确划分各个功能区,让两个空间既融合又各自独立。
室内融入建筑思维,弧形元素打破既定的沉静。柔软与坚韧的对比、素净与力量的糅合,内外间流转自如,自然延伸。
吊顶四周用弧形代替直角,弱化棱角,柔和空间。
曲线电视墙造型流畅,石材地台点睛背景墙,拉伸了视觉高度。地台底部也特意预留了一个小口,方便收纳插座电线。
看上去毫不费力的简约,其实充满了各种设计小心机。
这是从客厅看向餐厅的全景角度,同样注重第五面墙的餐厅,在顶面延续曲线元素,和岩板餐桌相呼应。
独立式餐边柜放置在窗边,台面上可以摆放一些常用的餐厅用品以及装饰品,柜内完成餐厅的基本收纳任务。
仿佛给阳光加了层“柔光滤镜”的香格里拉帘,可以说是这个颇有情调的餐厅里必不可少的实用单品之一!既能保证隐私,同时还能自由调节光线,收放自如,比布帘更轻便,比百叶帘更美观。
餐厅留白的墙面也搭配了一组简约装饰画,淡颜系餐厅也可以将美商拉满!
长虹玻璃推拉门隔开餐厅和厨房,保证采光,同时也放大了空间的互动性。
现场打造的橱柜,柜面用低饱和度的温柔雾霾蓝打底,通过色彩就能将厨房的美学意义最大化。
橱柜高低台面设计,符合人体工学上的科学设计,水槽位高一些,灶台位低一些,使用起来会更加顺手舒适。
用拱形门洞串联动静区,呼应动区的曲线元素,也增加了形式美,将空间可视范围提升到最大。走廊空间自然也没有被浪费,利用墙体做了一面顶天立地的内嵌式收纳柜,完善客餐厅的收纳任务。
客卫被一分为二,外移的洗漱台墙面用波浪砖铺贴,相比于传统墙砖,虽然它也是单色,但是视觉感更加立体,装饰性更强!自带智能调节的镜柜,也能兼顾一定的收纳功能,从而解放台面空间。
“形于色”的卧室,是家里另一个大美不言的区域!床头背景墙用伦敦雾作为主色,搭配优雅气质的石膏线造型,轻奢有度,浪漫刚好。
吊灯和放置在床头柜的床头灯搭配使用,看似随意的设计,其实是有意而为之,鲜明的对比让视觉层次更加丰富。因为改变了主卧门洞,所以刚好把衣柜设置在入卧室门处的一个小空间里,L型的衣柜布局空间利用率很高~
亚克力小桌子+鲜花,点亮了飘窗区,和室外景色很好的融为一体。
次卧面积小,所以我们将北阳台直接并入室内,扩大使用面积。
用百叶帘来代替传统布帘,视觉上更轻便,很适合小户型卧室使用。床品、床头柜到小摆件的选择,每一个都意趣横生,共同构筑起小小卧室的专属仪式感。
设计没有固定界线,一万个人就有一万种对美的理解,纯粹的表面装饰语言,也许可以拍出美美的照片,而人居住在这个空间里,一定是一种多维度的体验。
相关案例推荐
合肥深零设计
设计师相关作品

粤公网安备 44010602000156号