前言: 当代都市新贵的生活态度与古代文人墨客的风雅之姿,分别融入新现代主义诠释下的雅致住居空间。
休闲区
主卧
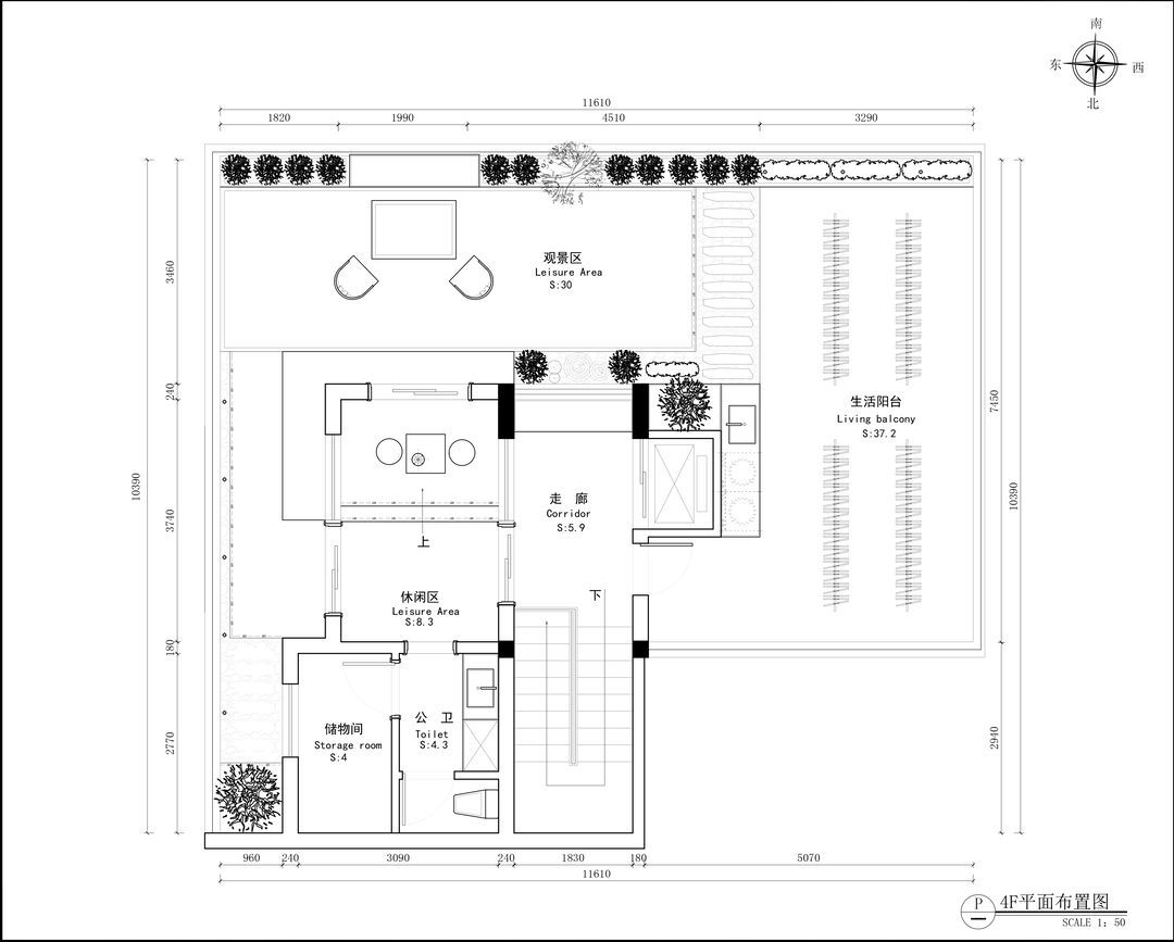
顶楼休闲区
花园
相关案例推荐
网友评论
冯乙彪
设计师相关作品

粤公网安备 44010602000156号