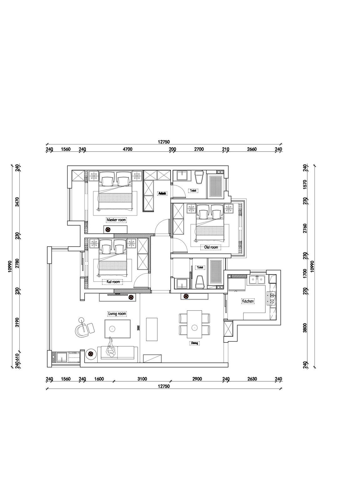
前言: 业主是一对从事飞行事业的夫妻,沟通过程中比较喜欢新中式,而这次的设计因为户型的原因所以我选择把整个一面餐厅 玄关 到客厅沙发背景做了一个整体的延伸,其实我觉得每一位飞行员应该都是一个勇者,每一次飞行都是工作大于欣赏,所以希望这样一整幅大背景让业主回来就可以放松心情,让自己翱翔于天际,而古色古香的中式韵味可以让人马上清静下来,静享时光的美好。
相关案例推荐
网友评论
江龙彪
设计师相关作品

粤公网安备 44010602000156号