前言:
									摒弃繁琐和奢华
并将不同风格中的优秀元素汇集融合
以舒适机能为导向
强调“回归自然”
充分显现出乡村的朴实风味
创造出一种古朴的质感
展现原始粗犷的美式风格
									
										户型图
										
											
											
								
							
								
									
								
							
								
									本案一楼平面布置图,分布客厅,餐厅,厨房,带花园和花园阳台。
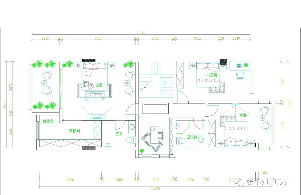
本案二楼平面布置图,一共三居室。
本案负一楼平面布置图,设置健身房,休闲区,客卧等。
										客厅
										
											
											
										
											
											
								
							
								
									
								
							
								
									带着浓浓的乡村气息,以享受休闲为最高原则,将以前欧洲皇室贵州的极品家具平民化,但又不失优雅,保有木材原始的肌理和质感,创造出一种古朴的质感,展现原始粗犷的美式风格。
在墙面材质色彩选择上,利用做旧木制作+文化石呈现出自然、怀旧、散发着浓郁泥土芬芳的色彩是美式乡村风格的典型特征。
										餐厅
										
											
											
								
							
								
									忙碌的工作生活总是不能让我们得到很好的放松,浓烈的色彩搭配可以让我们感受到民族的唯美自然风情,可以让我们疲惫的心灵得到安慰。在这里就可以享受纯朴心境。
										卧室
										
											
											
										
											
											
								
							
								
									
								
							
								
									
								
							
								
									
								
							
								
									
								
							
								
									
								
							
						没有华丽的装饰,没有多久高贵典雅的床上用品,就只有一张充满着古老气息的木质床,但是这简单的一切都那么的富有生命力,仿佛在呐喊。窗外的阳光很耀眼,房里的灯光很暗淡,波西米亚风格的装修特点又被表现的很是明显
相关案例推荐
网友评论
						
						
						
						
                        
						
						张洁
设计师相关作品
 
 
 
												
													
														
															
																 
												
													
														
															
																 
												
													
														
															
																 
												
													
														
															
																 
												
													
														
															
																 
												
													
														
															
																 
												
													
														
															
																 
												
													
														
															
																 
												
													
														
															
																 
												
													
														
															
																 
												
													
														
															
																 
												
													
														
															
																 
												
													
														
															
																 
												
													
														
															
																 
												
													
														
															
																 
												
													
														
															
																 
												
													
														
															
																 
												
													
														
															
																 
												
													
														
															
																 
												
													
														
															
																 
												
													
														
															
																 
												
													
														
															
																 
												
													
														
															
																 
												
													
														
															
																 
												
													
														
															
																 
												
													
														
															
																 
												
													
														
															
																 
												
													
														
															
																 
												
													
														
															
																 
                                                     
                                                         
                                                     
                                                     
                                                     
                                                     
                                                     
											
										 
											 
											 
											 
											 
											 
														 
														 
														 
														 
														 
				 
                
 粤公网安备 44010602000156号
粤公网安备 44010602000156号