前言:
项目地址:武汉市 联投花山郡
项目面积:200㎡
设计风格:美式混搭
项目设计:停云设计
项目施工:停云设计
业主在首次见面时就告知喜欢美式风格,作为设计师要告诉业主的是形成这些风格标签背后的生活习惯是什么,风格背后体现的是生活,她将来要住进去的地方应该是符合她的生活的,几次磨合之后,于是属于佳时如昨的风格就出现了。
这个项目在原结构上做了很多的改动。往大了做,采光会更好,空间会更通透,这样也更能符合他们阳光的的性格,让阳光多透点进来,让生活充满阳光。
我觉得一个空间的气质应该贴近业主的气质,是最好的,然后在这个气质上提升一点。让生活艺术,让艺术生活。
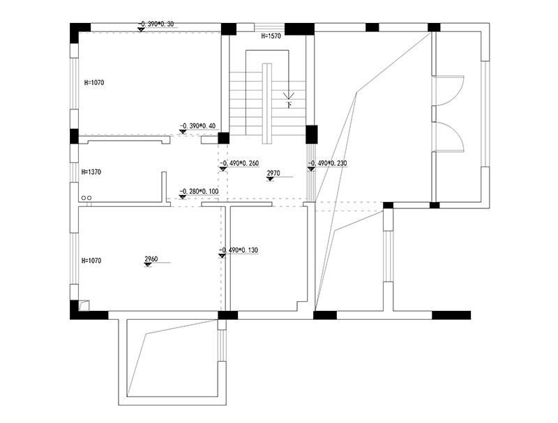
【原始测量图】
【原始测量图】
原始结构内一楼空间分布匀称,缺点是进门走道利用率过低,在这中大的空间结构内显得过于小气,厨房面积偏紧凑。二楼空间分布零散,主卧面积大,其他面积不匀称。整体结构采光通风偏优。
【平面布局图】
【平面布局图】
方案后一楼高效利用可利用空间,厨房外部现浇起来,扩大室内使用空间,楼梯下面做成储藏室扩大储存空间。拆掉内部墙体,使整体更加通透,更利于采光通风。中西厨分开使用,得到最大利用化。二楼把空间进行整体整合,是空间分布匀称,动线分明,动静分割,休息休闲区各种功能兼备。
在做家居空间时 ,我会更关注家人之间的关系。用我的空间,去制造他们更近的关系,更多的沟通的机会,更多的人与人之间的联系。
童年是很美好的,也是很重要的。童年要什么?我想应该是无忧无虑,开心快乐吧。一只陪伴的绿色小马,也可以让小孩子开心,一个彩色的小凳子也是对孩子的爱和尊重。
进门高中低三类鞋柜,巨大的收纳空间使得各类鞋子刚好的放置,从铁艺窗花投过来的光显得更亮通风也更好。
进门看到楼梯处花瓷砖是一个设计上的小心思,沙发若隐若现,动线改变去到客厅处,显得空间更富有层次感。
客厅各种质感沙发的搭配均衡而不凌乱,蓝色的鼓凳和墙上饰品的相呼应使得整个空间和谐美。
角落里的小壁炉,圣诞节的礼物藏在里面,想必也是满满的童趣吧。
男业主是一个非常注重生活细节的人,他们两个人热爱生活的方式是不同的。男业主喜欢做饭,所以很强调厨房的设计,中厨西厨,岛台。岛台还是远涉重洋运回来的。
西厨在餐厅的旁边。这里本来是中厨,后来把中厨改到里面去,把西厨放这里,用起来比较方便。还把卫生间的面积切了一点出来,放冰箱,这样厨房的功能就放大。中厨是自己砌的,也是做到最大,这样某先生做饭就方便了。
顶上的梁比较多,所以把顶修了一个形状出来,地面也去呼应。美是平衡的,让人在这当中感觉是安全的,是稳的。我最近很喜欢这种当代的调调,有现代有古典的杂合。感觉很奇妙。一家人在这吃饭,很开心吧,宽敞明亮,温暖。
有一个客户跟我说,做饭是人生的一大享受,也是放松的一个很好的方式。可以为家人做一顿饭,然后一起慢慢享受,也是非常幸福的。享受是这样的乐趣,他是这样的方式去爱人生爱家庭。他会经常出差,在家里的一起吃饭的时光是很好的享受,家人在一起的幸福时光。
最近去意大利,教授分享的奢侈。这样的难得的时光就是奢侈的。所以我就去认真的去关注这个关于做饭吃饭的空间的设计。他最想要的,对他来说,就是奢侈的。
主卧的床没有床尾凳配,是我们自己配的,等了一个多月才到货。宽大的落地门落地窗,抬眼就是窗外的美景,开敞通透。
新买的床,旧的搬过来的家具。搭在一起,也挺好玩,有一种奇妙的合拍。我一直觉得家是一些情感的积累和叠加,那些旧的物品,是情感和故事的记录。带着温度和感情,所以每次我都鼓励客户把旧的能用的东西都搬过来,而不是全部买新的。那些旧物品,记录了时光和变迁,记录了孩子的成长,堆在上面不止有灰尘,还有浓浓的温情。
加出来一个阳光房,做多功能用。空间设计也是一样,我都会留一些空间出来,不会设计得那么满。生活总是在变化的。留一些白,多一些变化的余地。
每次做完一个作品,就象把孩子打扮得干净漂亮,然后送他去上学,我就走开了,就是那种心情。若有所失。但是新的一天又开始了,又要迎接下一个新孩子。这是做设计师的痛苦,也是做设计师的快乐。
有那样的一个阳光午后,独自一人,看书,喝茶,或者发呆。有这样的一角,有这样的独自的心情,跟自己对话,是挺美好的。有人说夫妻关系,既亲密又独立是最好的。
相关案例推荐
停云设计
设计师相关作品

粤公网安备 44010602000156号