前言: 此案例为两套老房打通的改造工程,房屋结构很不合理,以前的老结构还有管道以及入户线都比较乱,在经过比较长的一段时间设计和业主沟通确定方案,在最后的施工中不断坚持才有现在的效果。
此案是2015年做的一个老房子改造,在刚接触客户时只是其中的一户两房需要装修,在全部施工图和效果图做好准备开工时客户听说隔壁一家准备把房子出售,因为在之前客户就一直想将老人接去一起居住,所以就将隔壁买下打通重新设计。每个家庭都会将最好的留给孩子,所以将采光较好的两间房打通作为儿童房。休息,娱乐,学习在一个空间完成,大人也有足够大的空间和孩子互动。由于这边一半都是一家,所以在物业允许的情况下将走到扩到室内,并且做了一个外门厅做了两组大鞋柜。主卧靠窗户一边空间预留比较大是因为客户喜欢看书,所以是预留一个阅读椅的位置。老人房摆放比较空旷是考虑东西多了影响老人走动,并且客户后期按摩椅有地方摆放。
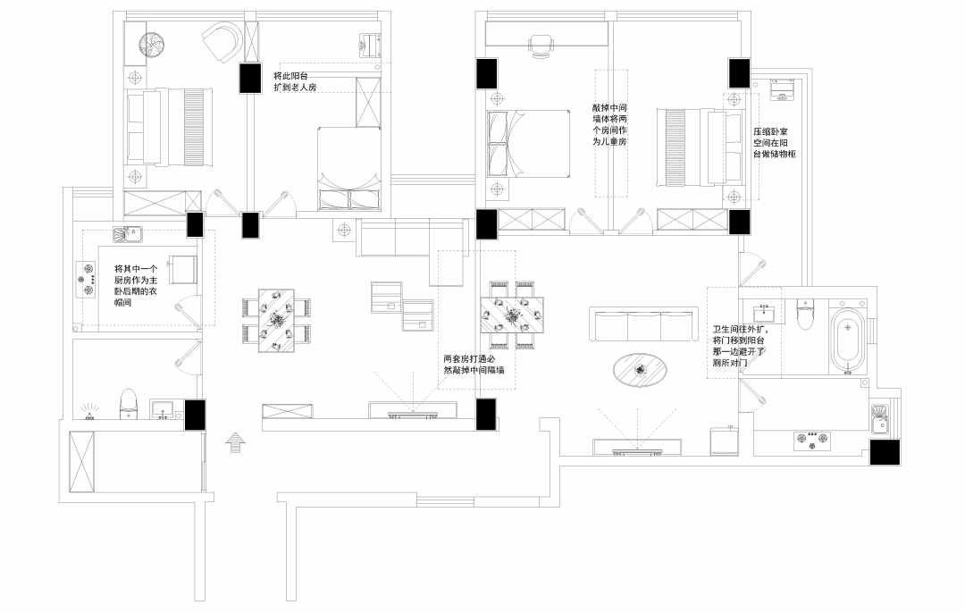
此平面为改造前房屋结构图。
开始设计时业主就要求不要华丽的装饰,只要家里温馨。整个空间利用了绿色系搭配黄色系,使得空间色彩丰富又温馨。
因为进户已经有玄关,并且考虑整个空间的协调性所以沙发背景墙没有做过多的造型就是搭配了一些绿色的挂盘。
原始客厅照片,与另一户之间墙体还没有打通。
有窗户的这面墙是后来的沙发背景墙。
利用卫生间凸出来的墙面做了餐厅的背景墙。在方形的空间用圆形的吊顶和圆形的餐桌呼应。
房屋的承重结构动不了,原来的厨房比较小,所以在中厨外餐厅旁做了西厨,这样和家人在西厨区榨果汁,烤蛋糕是一件很幸福的事。
改造后的西厨区域,由于西厨和中厨之间是承重墙无法拆除,所以就将冰箱放在外面并且做了中西厨。
这个卫生间选用比较复古的搭配。
定做的面盆和墙面严丝合缝。
两个卫生间所以一间做了浴缸,并且给孩子洗澡要方便很多。
此房保留两个卫生间,这个没有采光的卫生间靠进户,主要是给客人用。
这个卫生间保留在餐厅背景墙后面,因为采光和通风比较好所以主要是自己家人用。
老人房用咖色来打造,没有繁琐的造型,利用软装搭配空间。
主卧用黑色家具,买家具时业主认为用黑色会压抑,现在把软装做上以后她说黑色家具看着很有质感,搭配也上档次。
几个房间改造前基本都是这样,拍照是恰逢雨季,房子里积水比较严重。
父母永远把最好的留给孩子,两间房打通作为儿童房,小宝很喜欢变形金刚,整个空间利用擎天柱身上的颜色搭配。
床头背景画了破墙而出的擎天柱,小宝认为擎天柱能够保护他。整个空间活动区比较大,有小朋友来了既能玩耍也能用投影仪看电影。
家里的书比较多,所以书柜比较大,书柜旁做了涂鸦墙为增添孩子的娱乐项目。
进主卧首先是衣帽间。所以美观很重要,就没有全部做上柜门。而是花心思设计了一些镂空的地方使空间不会压抑沉闷。
后来主卧衣帽间是原来一个厨房改造,之前在此居住主要是靠窗生火做饭油烟排不好,所以室内墙面积油严重,后来改造中此窗户还是保留采光,只是密封性做好了,因为隔壁家还是在往外排烟。
相关案例推荐
止间设计机构
设计师相关作品

粤公网安备 44010602000156号