前言:
简单的摆设,简单的调调,抛开外面的喧嚣霓虹城市,宁静的环境,淡淡的清香,这里属于你。
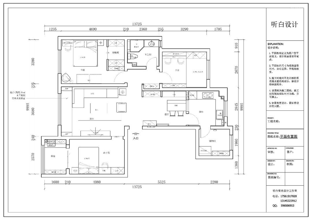
户型:三室两厅
建筑面积:127平
装修预算:18万
装修风格:日式混北欧
主案设计:听白设计
摄影师:平子
设计沟通:
居住情况:已婚,但这套房子是真正意义上的婚房
工作情况:技术人员
正常需求:储物要多,有手办书籍很多,等等
特殊需求:两只柯基,吃饭睡觉玩耍空间要足够
设计重点:
户型结构不算太好,承重墙也太多所以我们在设计的时候,并没有去大改结构,只是把比例不合理的空间调整到合理,让比例更舒适。
因为预算有限,我们在选择材料的时候,各种对比,一些质感很好的材料,真的没舍得用。我的理念也是不要盲目追求效果,然而投入太多。我觉得房子再好看没有住的舒服重要,而且不管设计的多好,七八年后再看也不好了,而且最重要的是到时候也旧了,没有新鲜感了!我们做的就是在我们有限的预算内尽量达到最好的效果吧。
客厅
原木色的家具给人非常亲切,轻松的氛围;落地窗使得阳光充分进入室内,让室内更加亮堂,舒适。
电视墙用了隐形门的设计,在选择了诸多材料之后选择了,木地板。主要是考虑预算和效果。
餐厅
这个柜子下面是放两个狗狗饭碗的位置,上面是放狗狗的玩具,中间留空可以随手放一些小物件,最上面的柜子是挂衣柜。
相关案例推荐
网友评论
听白设计
设计师相关作品

粤公网安备 44010602000156号