前言: 项目名称|Name: 渝乡海棠|YuXiang Begonia 项目地址|Location: 中国重庆|ChongQing,China 项目面积|Area: 620㎡ 主材|Main Material: 做旧钢板、红砖、现浇混凝土、藤编 完成时间|Date: 2019.03 设计公司|Design: 集嘉设计|JIJIA Design 主案设计师|Interior Design: 沈嘉伟|JiaWei Shen 执行设计师|Executive Design: 唐 勇|Yong Tang 项目撰文 | Project writer : 杨拉蔓|LaMan Yang 商务合作 | Business Cooperation: 杨女士 13688461893
重庆,一座烫涮在「牛油锅里」的城市, 火锅,之于重庆不仅是美食,更是餐饮文化的代表
「渝乡海棠」作为重庆本土老火锅,随着潮流的更迭,更注重「环境氛围」给予食客带来的「新鲜感」。分店的开设,集嘉设计为之打造了「美意」的新生命力。 「渝乡海棠」位于重庆渝北仁安N+,360°全景式玻璃盒子,独栋的商业建筑群设计,新兴的商业规划也给室内空间带来了「潮趣」。
▼环绕\THE SURROUNDED 入口即出口,出口亦是入口。渝乡海棠由三个商铺合并而成,主体不允许拆除,空间布局有限,设计师巧妙运用分隔墙、格栅等元素完美的将原本分隔开来的商铺融合在一起,确保了空间的整体性,创造出微妙且丰富的变化,通道环绕既可入亦可出。
▼木制滑门提高空间视觉的整体性与利用率。
▼包裹\THE PRIVATE 大厅用餐区无封闭式结构,设计师巧妙运用竹质屏风,矮墙围格,增强了动线与隐私性。顶面凹凸造型予人包裹感,火锅的热闹与食客的私密性并存。
▼变幻\THE CHANGE 室内运用做旧钢板搭配透明玻璃及梁柱、围墙、地坪转换,不同的材质变化,增强了空间节奏,不仅为食客创造了极好的空间体验也呼应了渝乡海棠丰富的食材及其厚重的口感。
▼透景\THE SCENERY 整体空间利用墙面留白、格栅等造型,创造视线转移间不同的框景,远望具有层层叠叠的丰富写意,整个空间通透且有景色变化。
▼细部\THE DETAILS 红砖墙及木质屏风的运用,使得整个空间更好得诠释了现代及传统的结合,不仅仅契合了商业建筑群的整体风格并保持了现代人的生活方式和审美习惯,融入了「渝乡海棠」独有的品牌特色,「渝乡寻味,有美意」。
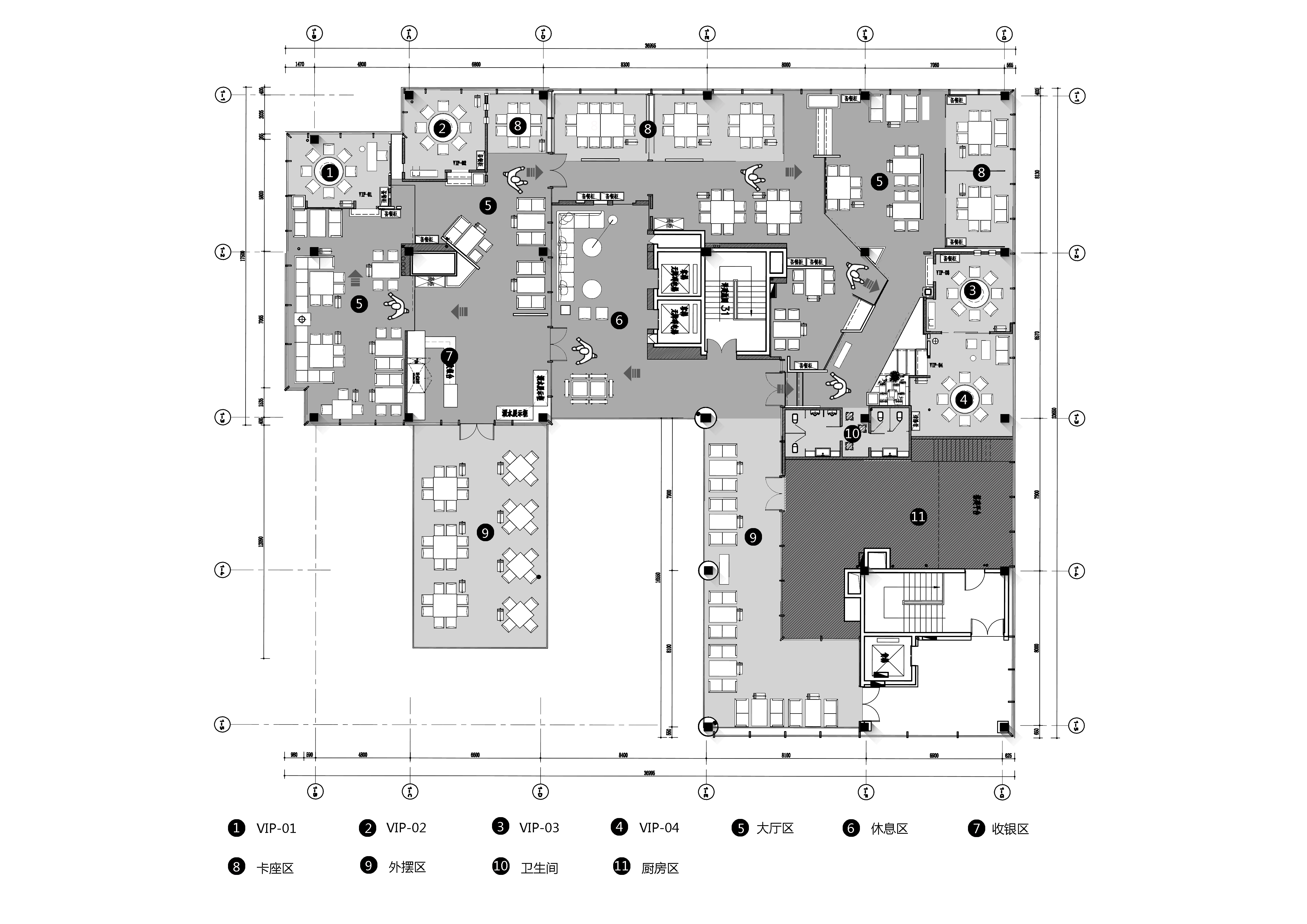
▼平面\PLAN VIEW
相关案例推荐
沈嘉伟

粤公网安备 44010602000156号