前言: 本案例最大的设计亮点在格局改造,将位于户型中间的楼梯重新规划在两侧,一层空间更加通透开阔,同时楼梯位置的改变也使空间布局更加合理规整。
①原始布局中,楼梯处于户型中间位置,正对入户门,整体空间比较压抑。且楼梯和二层空间占用的里面空间较大,导致房间里面采光昏暗。
因此在格局规划中,设计师将楼梯规划在A、B两处,改造后的客厅空间整体通透,站在走廊看过去的视线开阔,没有任何遮挡,同时更为规整的布局提高了房间的采光,增加空间感。
②拆除原始墙体,将厨房设计成开放式,提高空间使用率,增加了一层空间的采光通风。
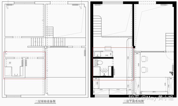
重新规划楼梯后,卧室成为了一个完整的复式空间。拆除部分原始墙体,在二层规划出洗漱区、梳妆台、卫生间和衣帽间,满足女主人的日常需求。
▲装饰画的风格与地毯的形状相呼应。主体沙发没有选择常规的深黑色或者深灰色,而是选择了灰蓝色,使之从整体灰调的空间里跳出来,显得空间层次分明。
▲客餐厅照明选择双支架灯光,灯头可以自由调控,上下左右旋转。不开主灯时,可以用做落地灯为客厅提供照明光源。餐厅用餐人数较多的时候,可以将灯光拧在餐厅一侧,成为两个餐厅灯,提供充足的照明。
▲客厅墙面没有做过多的装饰,顶部的射灯与真假梁相互配合,通过光源做出层次分明的光影,作为客厅背景墙的装饰。同时光源与真假梁营造出的层次感使客厅不会因为过高的挑高显得特别空旷。
▲原始户型是一个小两层,但房屋本身不具备两室的条件。开发商做成两层后,由于层高有限,单层层高只有2米左右,空间低矮,非常压抑。
▲改造后的主卧分为楼上的功能区,包括衣帽间、卫浴、梳妆台,以及楼下的休息区,是一个完整的复式空间。
▲楼上衣帽柜靠近栏杆一侧选择了屏风遮挡,目的就是为了阻挡衣柜侧板,从这个角度看过去不至于是一片白墙,优化视觉效果。
▲和猫主子互动的设计师。卧室采用了单边吊灯,一侧落地灯的形式。
▲花与鸟是我国传统审美文化的重要组成部分,花鸟图向来是文人画家的心头之好。设计师选择小鸟落地灯搭配花束,营造了小鸟嬉闹花间的意境,极具艺术美感。
▲这片空间没有考虑功能性,业主希望设计成休闲区,设计师选择了休息凳以供业主使用。
▲楼梯下方空间合理利用,设计暗藏空间,可以存放日常杂物,与扶手踏板搭配出极简风格。
▲卫生间采用干湿分离,洗漱区设置在门外走廊尽头。镜面后设计隐藏光源,使整个空间的光线均匀柔和。下方设置方便存储的储物空间。
▲卫生间空间较小,采用壁挂式马桶,一方面可以用来置物,另一方面挤压了整个卫生间区域,使整个空间显得更大。
整体选择了黑白灰色调,三者搭配起来,每一个颜色都显得相当纯净。颜色之间没有糅杂,单色突显的非常明显。
▲一楼卫生间也有洗漱区域,因此二层洗漱台采用大单盆,左侧则作为女主人的梳妆区。镜面后同样设置隐藏光源,让光线自然均匀。浴室柜下方设计方便使用的储物空间。
▲卧室二层算是女主人的专属空间,洗漱、换衣、梳妆是一条完整的动线。
▲工作学习区抛弃了传统的办公椅,设计师为业主选择了舒适度较高的带有脚踏的单体沙发。业主在读书学习以及工作的时候,可以处于一个舒适放松的状态,区别于在公司的办公环境。
桌子选择了长形的条案,抽屉采用隐藏式,工作区不需要太多繁杂的装饰,简简单单最好。
▲选择沙发的还有一个原因:工作区旁边设计了休闲娱乐区,单体沙发的选择让整个空间都显露出舒适安逸的气氛。
相关案例推荐
JORYA玖雅
设计师相关作品

粤公网安备 44010602000156号