案例 > 住宅空间 > 案例详情

桑迪亚哥梦

上海 |风格: 地中海
2015-08-11
42136

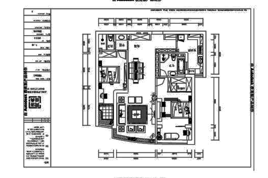
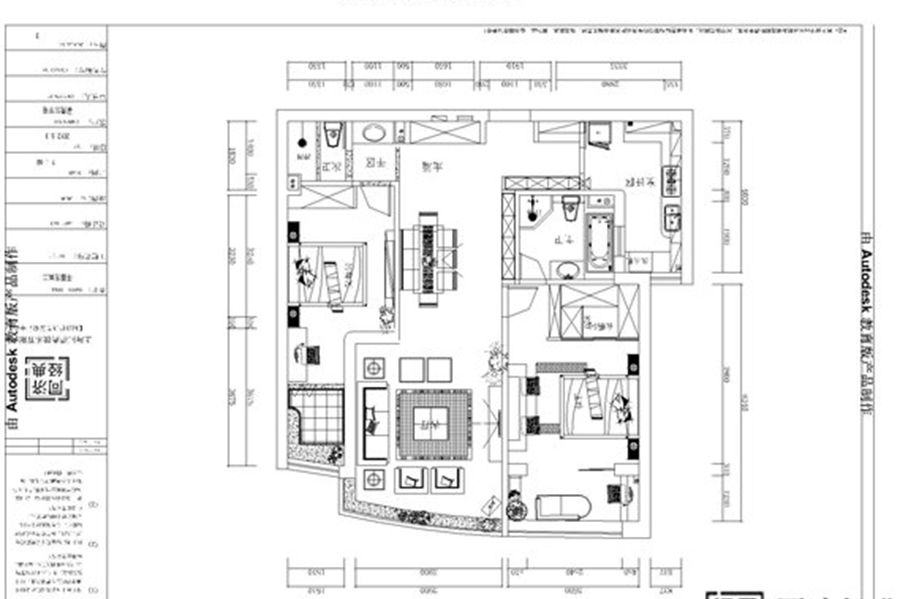
前言: 本案的设计风格为美式简约,以清新淡雅为装饰主题,整个空间选用白色为主色调,结构性非常强的线条勾勒,让空间棱角分明,更显层次感。 桑迪亚哥梦——风格美式地中海 混搭 (简约美式),设计师邵璐娟

餐厅

餐厅 地中海

网友评论

邵璐娟

上海市 报价:250-500元/平方米

工作年限:

8年

报价范围:

250~500元/平方

擅长风格:

现代、欧式、美式、现代简约

擅长类别:

住宅公寓

公司名称:

同济经典设计

职务:

设计师

服务地区:

上海

简介:

人的一生中极大部分时间是在室内度过,因此室内环境、空间的大小和形状必须直接影响到人们的身心健康。 生活在一个既舒适又美观的环境中,是多数朋友在装修房子时的期盼,邵璐娟坦言,自己作为同济经典设计的首席设计师,就是在打造空间时,实现他们的梦想。一直以来,她都坚持从简单中体现生活的舒适及美观,在构想设计方案时,尤其强调空间的通透度,用几何线条来进行造型修饰,讲究适度的空间比例和明确的空间结构。

查看更多

发现好物 查看更多好物
扫码查看更多案例
点赞
评论
小程序
扫码登录 账号登录
请打开家居杂志客户端“扫一扫”
忘记密码?
还没有通行证帐号?立即注册
其他账号登录: