前言: 一路拼搏之后的那份释然,让人们对大自然产生无限向往,回归与眷恋,淳朴与真诚,也正因为这种对生活的感悟,美式乡村风格给了我们享受另一种生活的可能!美式乡村风格摒弃了繁琐和奢华,并将不同风格中的优秀元素汇集融合,以舒适机能为导向,强调“回归自然”,使这种风格变得更加轻松、舒适。美式乡村风 格突出了生活的舒适和自由,,不论是感觉笨重的家具,,还是带有岁月沧桑的配饰,,都在告诉人们这一点,特别是在墙面色彩选择上,自然、怀旧,散发着浓郁泥土芬芳的色彩是美式乡村风格的典型特征。
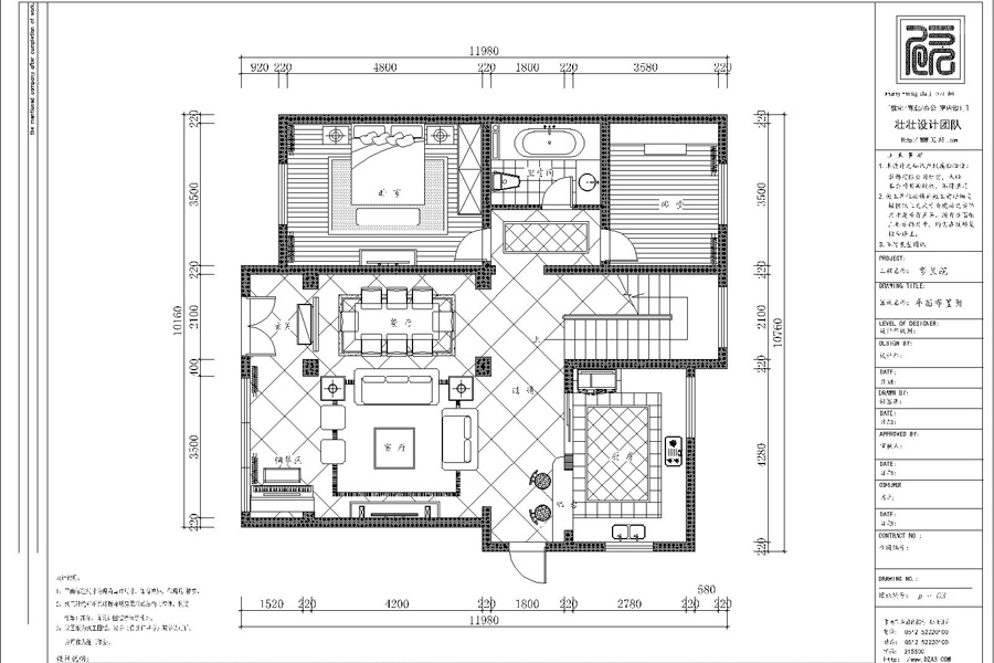
因考虑客厅不显的那么空旷,以及希望厨房与餐厅能分开成为独立的空间,所以把餐厅的位置设计到客厅的后面,这样的格局调整不仅能让每个空间都能独立而互不干扰,也使之前空旷的客厅丰富了起来,整个客厅的墙面和顶面运用到仿肌理漆的墙纸,体现了强烈的质感和丰富了墙面的内容,做到整体的统一性.在电视背景墙上厚重色调的墙纸与米白色调的石材体现出刚柔质感的强烈对比.在改动后的餐厅区域被四个木质立柱所包围,围合感很好,餐厅背景墙用了木框、茶镜、美式碟子所表框好的装饰挂件,来代替常规的装饰画
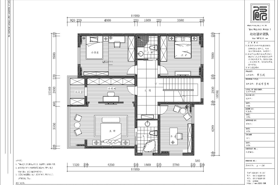
仿古的木质双人床、大花的床头墙纸、碎花图案的窗帘,和放在阳台一角的休息座椅,午后坐在阳光下,望着远方,任凭阳光的洗浴,种种的生活习惯都体现着主人独特的生活品味!
一进入房间,就知道这是一间女儿房,暖红色的格子墙纸与白色做旧木质的公主床,在加上绿色格子小圆点的窗帘,诠释了当下的花季少女时的青春时光。装饰品的点缀上,从蕾丝花边的台灯、古铜色的公主镜,再到仿古式的相框都是根据整体的风格和喜好静心挑选
相关案例推荐
 
							麻玉婷
 
 
 
												
													
														
															
																 
												
													
														
															
																 
												
													
														
															
																 
												
													
														
															
																 
												
													
														
															
																 
												
													
														
															
																 
												
													
														
															
																 
												
													
														
															
																 
												
													
														
															
																 
												
													
														
															
																 
												
													
														
															
																 
												
													
														
															
																 
												
													
														
															
																 
												
													
														
															
																 
												
													
														
															
																 
												
													
														
															
																 
												
													
														
															
																 
                                                     
                                                         
                                                     
                                                         
                                                     
                                                         
                                                     
                                                     
                                                     
                                                         
											
										 
											 
											 
														 
														 
														 
														 
														 
				 
                
 粤公网安备 44010602000156号
粤公网安备 44010602000156号