前言:
Space and people communicate with each other, allowing users to experience the products while enjoying the space, and imagine that they will bring comfort,convenience and enjoyment to life.
—-FF
本案业主:单身女教师
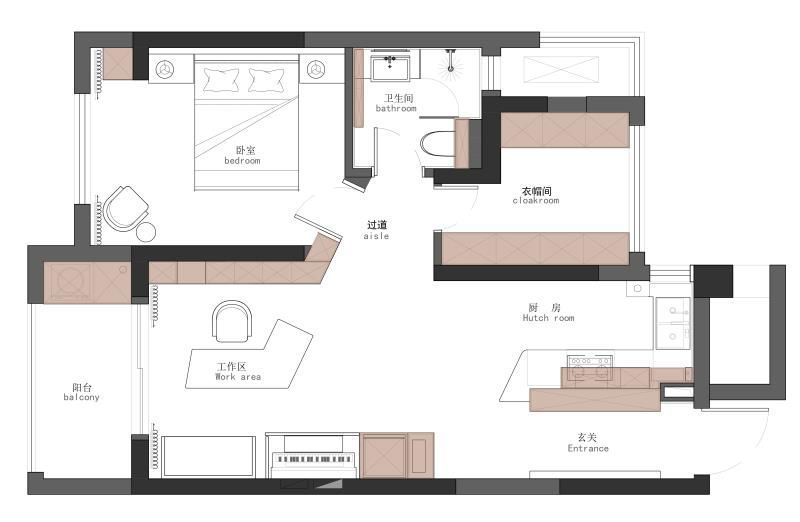
平时业主在家办公时间较多.所以没有采用传统的客餐厅的形式.我们在公区只做了一个厨房和书房.甚至我们都没有要餐桌.因为生活很简单.书桌偶尔可以替代餐桌的功能.
原始户型有一小块面积是赠送的
从平面布局上看出.没有传统式的客餐厅.将书房作为整个公区的重心.将书柜墙体做了转折.让卧室.卫生间和衣帽间之间的交通枢纽变得更为宽阔.
玄关与厨房.我们用了一组顶天立地的柜体来做隔断.满足双侧收纳的使用需求.红色体块可以随手放置钥匙之类的物品.同时也是一种装饰.
鞋柜下面方便进门后的随时换鞋的功能.
玄关底端柜子的侧面还有一款蒸汽壁炉,由于管线还没装上,所以没打开.略有遗憾.
书房即客厅.我们做了一组柜体.柜体内部藏了电子钢琴和暗藏式冰箱.
跟柜体一起,我们做了一个红色的BOX.偶尔还能代替沙发,坐在上面阅读.
书桌定制了一款异形书桌.符合整个空间的不规则形体.
相关案例推荐
FF DESIGN
设计师相关作品

粤公网安备 44010602000156号