前言:
五层楼的透天别墅,一楼拥有优越的屋高条件,为了衬托出更加深远、开阔的空间感,赵玲室内设计特别运用大量的门拱设计,创造视线向上提升的效果,并且选用简约的线板样式,避免造成凌乱的视觉感受。
喜爱新古典风格的屋主,希望家中能呈现华丽质感,赵玲与吕学宇设计师采用重点装饰手法,力求跳脱以往对于新古典风格的制式印象,例如餐厅的天花板,采用玻璃结合格栅造型设计,呈现新古典的精致质感,并于四周挂满水晶珠,在光源投射下展现剔透的光影变化,反转餐厅一定要以水晶灯作为主灯的思维。
整体空间配色则以白色为主,搭配金色、灰色系的家具与软件来表现华丽细节,创造精致且不流于通俗的新古典之美。考量十年、二十年后的起居需求,实用机能性亦是本案的一大设计重点,除了强调充足的收纳量,三楼、四楼的空间规划更分别安排卧房与兼具书房、交谊厅功能的起居室,让屋主的一双儿女能够保有自己专属的私人空间。
视觉拉高
运用大量的简约线板与门拱设计,创造视觉向上提升的效果,凸显本案的屋高优势。
天花设计
餐厅天花板特别以玻璃结合格栅造型,周围点缀水晶珠,烘托新古典的华丽质感,并借此隐藏维修孔的位置。
主卧室
延续公领域的风格设计,以白色简约的线板造型做铺陈,结合古典图腾意象,营造优雅细腻的空间质感。
更衣室隱藏門
更衣室隐藏门
考量整体视觉美感,女主人的更衣室动线特别以对称手法加以隐藏。
女孩起居室
以新古典为设计主轴,白色基底搭配粉色、碎花元素,营造甜美可爱的空间氛围。
男孩起居室
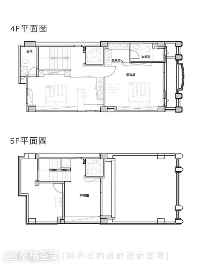
起居室兼具书房与交谊厅功能,并规划大量的收纳展示柜,满足丰富的生活需求。
男孩房
以铁件与实木皮板为设计元素,适度营造出沉稳刚毅的个性。
相关案例推荐
幸福空间618
设计师相关作品

粤公网安备 44010602000156号