前言:
LOHAS 是2001年美国一位名叫 Paul Ray 的社会学博士在他的书 "Cultural Creatives" 中用来描述新出现的一个消费群体的生活理念。
这个消费群体拥有的理念是这样的:
他们提倡绿色健康生活和可持续性(sustainability)的生活方式,有强烈的环保意识,关注消费主义对于环境的影响,花时间培养人与人之间真诚的互动和互助关系,注重心理健康,不满于以奢侈消费能力来定义“成功”的现代社会观,希望可以在以消费能力定义幸福指数为标准的“美好生活”之外找到让自己更加满意的生活方式。
About Room:
Design Team:匠诚美艺
Designer:陈莉莉
Decorate Team:匠诚美艺
Address:金融城 · 中天润玺
Floor Area:291m²
时间倒回5年前,业主夫妻二人关于装修找了多家公司,都没有满意的设计,男主偶然间在杂志上看到陈老师的作品,觉得不错,并向杂志社取得陈老师的联系方式,沟通了解后,对于我们的设计想法和方案都很认可,很快达成了合作共识。从合作初期到结束都非常的愉快,彼此建立了友谊。
这几年业主也一直关注着我们的动态,见证了我们的成长,期间女业主公司的装修设计,也选择了我们。
今年客户又购置了新的改善型住房,再次联系我们,这一次他们选择了全案设计,从设计、施工到软装都托付于我们,非常感谢他们的认可与支持,每一次的付出我们都会尽心尽力,不辜负业主的信任。
再次的改善型住房设计,对于三代同堂的6口之家而言,他们的生活不再只是单一的需求,更多的是一种品质的提升。“乐活”的生活理念是他们的初衷,材料不仅要环保,更要安全。
亲子阅读,互动游玩,还要保留一点私密空间,空间功能更加多样化。未来这个设计会见证他们的成长。
好房子是基础,好设计却决定了生活的质量,好设计可居三代。对于各个年龄阶段不同人群需求的考虑,我们做了多个的方案,最终汇成这一版。
功能和空间划分是前提,也是一个设计成败的关键。设计美感是对空间表达的升华,本案中除了基本改造与美化外,我们还考虑了安全和健康,以及业主对家的理解和向往。
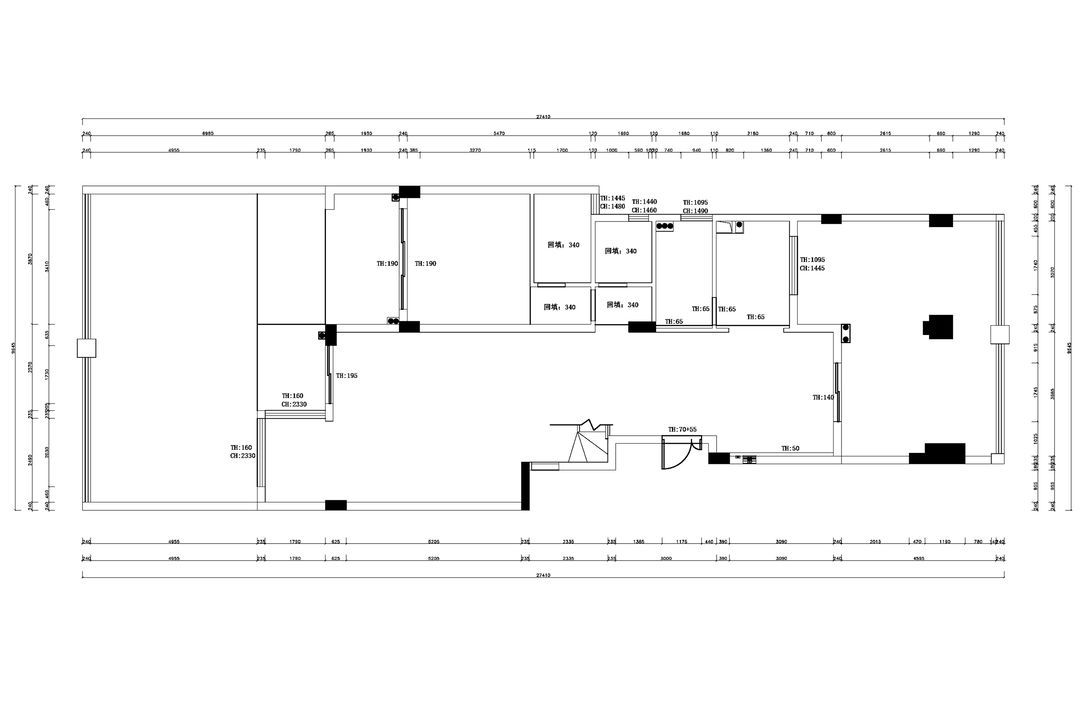
一层原始结构图
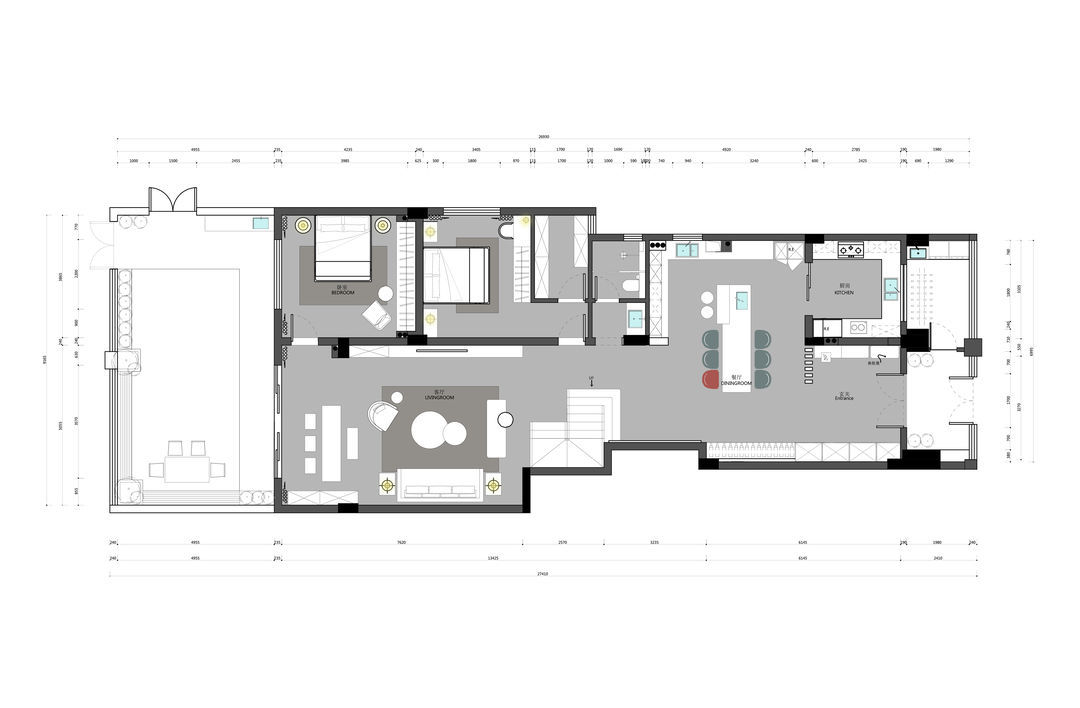
一层平面布置图
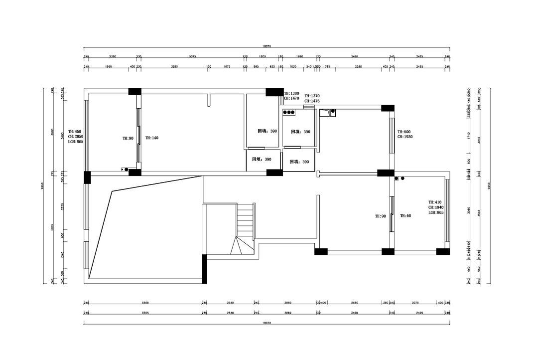
二层原始结构图
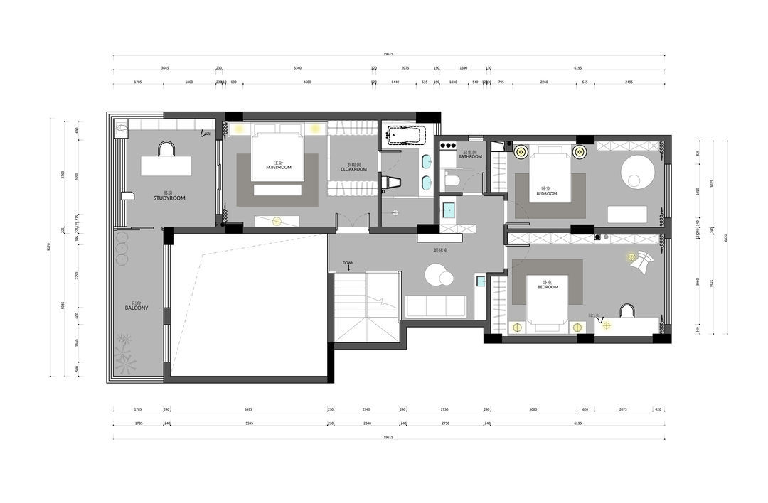
二层平面布置图
本案为复式大宅,一层具备前后花园,宽广的视野和采光;周围绿植覆盖率很高,清晨室外的阳光空气,可直接与室内互动交流,让心灵与大自然来一次亲密无间的接触,享受此刻平静,回归无我。二层主要为主卧及小孩房,另外还设置亲子互动空间与书房,更关注孩子的喜好,与孩子的身心紧密关联,增加家庭藏书,培养家庭成员的学习习惯把自己的家庭建设成知书达礼的书香门第。因户型较大,我们在二层增加了一个人性化的水吧设计,使生活更便捷。
在入户的改造上追寻大宅的设计理念,将入户方位做了调整,视野更为宽广,使得进门更具仪式感,玄关储物与装饰结合,在形式美化中也不失生活功能。
在设计思考中按照家里人的生活习惯以及长辈的作息规律,我们将一层设为公共空间及长辈卧室,完美规划动线及细节处理,减少像赌博、吸烟与玩游戏机等对人身心有害的休闲娱乐活动,增加品茶、养花种草、琴棋书画与手工制作(DIY)等有利于身心的体闲娱乐活动。
迈入客厅,是感官体验上的一种升华,挑空空间更富有视觉张力,致力于把客厅打造成一个简约,时尚的现代居家空间。手工区的增设,也可充当茶台,书桌…空间的围合更注重家人之间的情感交流,一家人其乐融融,自由天伦。
木饰面的结合带有宁静和安稳的自然力量,赋予空间一种安心稳重感。以灰色作为中间色搭配调和,使得空间多了份轻盈感。总的来说,这样简约而不简单的颜色配置,营造出的是一个舒适的无压空间。以一种脉络扩散延伸的形式展现,蕴含着对于每一次在空间邂逅时的怦然心动。
主卧的设计中,将主卧、衣帽间、主卫及书房呈一条线设计,在动线上更为便利,每个空间隔而不断,给不同的使用人员相互交流,又互不影响。
在卧室中属性材料的运用也与公共空间相呼应,而在材料上优先采用简洁、环保与安全设计方案与装修材料,选择天然与有机面料的家纺用品。
住宅设计的核心就是“人”,人与空间的关系,人与人之间的关系,设计是基于感性,又不失理性的表达。无论是空间分划还是从功能动线去分析,在后期的使用中舒适度才是我们对家的向往。对于此案设计业主表示非常满意,这也基于我们前期对于客户的足够了解,以及对业主需求的准确采集,给业主汇报方案几乎没有改动,当然也是业主对于我们设计团队的信任。
这,是否跟你所认识到的「乐活」有所不同呢?说实话,不管是相同还是不同,生活可以有很多种方式,在能力所及,选择自己喜爱的生活方式,无论是什么形式,只要让你感觉到快乐和富足,在任何时候,都是给自己最好的礼物。
匠诚美艺设计团队介绍匠诚美艺设计团队是贵阳首个创新全案设计团队,全案设计托管服务内容包括了功能布置和风格定位、整体预算编制、 施工过程全程跟踪、主材搭配及落地对接、家具及软装跟进与落地。我们的设计团队按照项目来配置,每一个项目一个主案设计师做整体的把控和协调,搭配一个至两个执行设计师做硬装部分的设计完成、施工跟踪对接,配置一名软装设计师做家具和软装搭配落地。只有一个强大、完善的设计团队才有一个良好的过程和满意的结果,才会有设计想法的充分落地和美好的实景作品的落地。
大家好,我们是匠诚美艺DESIGN
相关案例推荐
陈莉莉
设计师相关作品

粤公网安备 44010602000156号