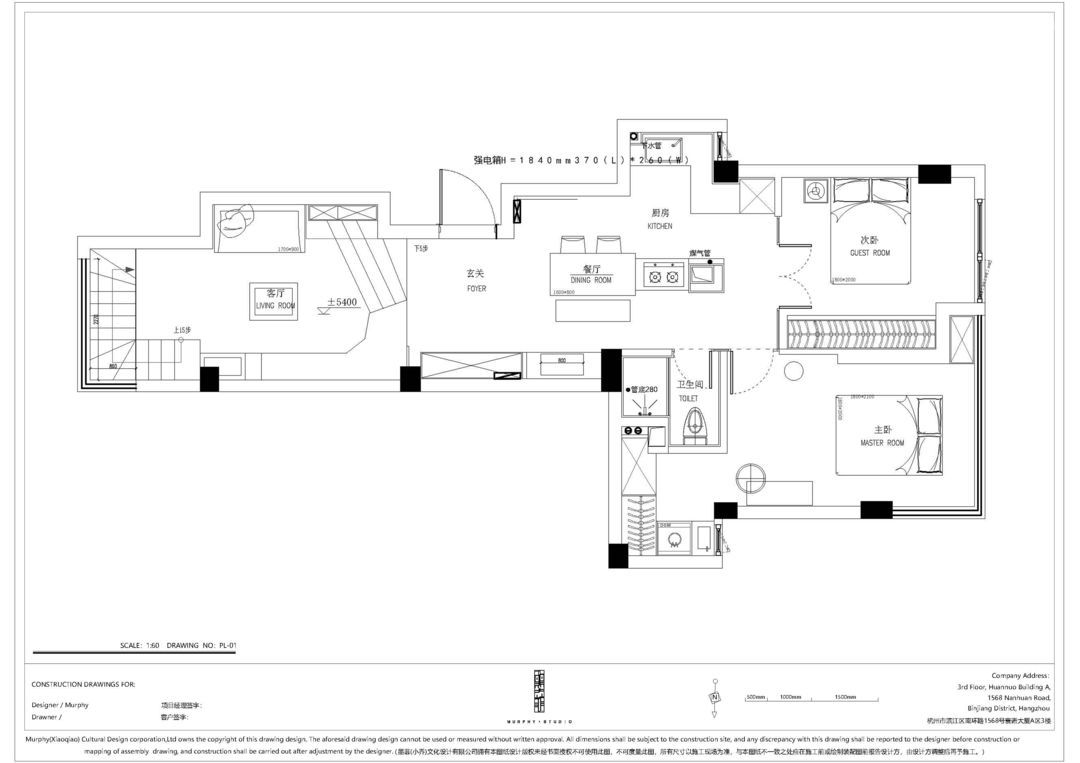
前言: 先来说说我为什么选择买这个“奇葩”户型? 这个户型奇葩在哪里? 1.客厅下沉1070mm 2.狭长“手枪式”户型结构 3.客厅总高5.4m 当我第一次看到这个户型也是被惊了一下,怎么会这么奇葩?客厅下沉1070mm,是又长又窄。刚开始也没打算买,就是职业习惯,自动去想了下如果我碰到这样的户型,那么该如何去规划空间。 因为这个户型的特殊性,导致了我对它一直念念不忘。后面看了几个常规户型,也没有特别感兴趣的。 父母来看过后,直接是摇摇头。 这就是我买这套房子的原因,其实很简单。就是因为它的奇葩,想自己尝试一下。唯一觉得这个户型有优势的就是客厅的5.4米层高,我一直很喜欢跃层,但当时资金有限一直没有合适的房子。最终这个奇葩户型也算“半个”跃层吧,也算是了却了我的跃层梦。
以上就是我家的户型。 不知道各位住友们有何感叹?因为换了手机,拆旧完的现场图,晚些时候再上传。 先说说这个户型缺陷: 1.左边横线到窗均为下沉区域,客厅处整体的层高是5.4米 2.玄关处非常窄,且因为狭长,所以餐厅区域的光线在白天也并不是很好。 3.次卧空间非常小,也很窄。如果按正常放置1.5米的床,那么过道空间基本过人都非常难。 4.主卧空间也不够大,如果要衣帽间,完全没有实现的可能。 差不多就是这些,还有就是除了客厅的层高比较高,餐厅、厨房、卧室区域层高就只有2.63米。
这个方案完全是根据我的需求来的 1.下层客厅通过浇筑隔了一个书房,只浇筑了2/3的面积,是为了空间的通透感和层次感。 2.开放式厨房,岛台上放置了升降油烟机。 3.原主卧变成次卧,享受90度花园景观。 4.缩小卫生间从而满足自己的衣帽间需求。 5.洗衣机和烘干机替代洗衣晾晒功能。 6.通过立面弱化狭长的空间感受。
这是我很喜欢的一张照片,可以看到我在浇筑的时候没有把楼板浇筑过来。留出了一块挑高的空间,这个就是希望空间层次感会丰富,因为窄,所以需要高来均衡。 客厅没有使用窗帘,而是选择了电动木百叶的形式。主要是因为层高的问题,真的不是很好打理。 我有习惯在客厅看书,所以特别给自己准备了一个3米高的书架。可能有的小朋友会说顶部的层板没有用,其实家里还有个梯子,只是拍照的时候觉得东西太多,没有放上去。
客厅沙发选择了一款两人位沙发,舒适度非常好。 两人位的沙发有人来就会显得特别的局促,所以我又在对面做了一排卡座。 功能上进行互补,而且不单单可以坐,我也很喜欢卧在角落看看书。
不知道看这张照片能让你相信出来原本的客厅“坑”有多深。 灯光的处理上我格外花了点心思,比如卡座下面暗藏了等待。主光源和辅助光源都有做布局,因为照片是白天拍摄的,所以没办法展示。如果看过我直播的住友,不知道还有没有影响。
客厅的顶部我用了竹子来做装饰,我其实蛮喜欢竹子的。只是竹子的元素真的蛮难用的,所以一直是只敢想不敢做,自己家就当是试验,不过总体感觉还是蛮好的。 我希望自己的家有一些自然的味道,竹子在这里就是起到了这个作用( ps.竹子选择的时候一定要选择做过防腐处理)。 只是木工的安装费特别高,竹子都是工人一根一根装上去的,所以非常费工。
这是客厅隔层往下看的角度,这个灯也蛮喜欢的,只是今年不知道怎么滴突然特别的多。
楼梯我希望是尽可能小一些,因为我希望不要挡光。 楼梯不是钢架的,是浇筑楼梯。 没有装扶手是因为家里没有小孩,近几年也不会有。还是希望不要去挡光线。
这个角度也是我蛮喜欢的角度,这个平台就是给我拿取书用的,平时如果要用到上面的层板,就会把梯子拿出来。平台下面刚好也就成为我堆放不常用物品的区域,可以放置四个这种大小的箱子。 客厅顶就是原始楼盘的面,只是在浇筑的时候特别让师傅用了小块面的模板,从而有这种粗旷的自然纹理。
餐厅和厨房连接在了一起,因为本身的面积并不是很大。 油烟目前使用下来不会有,只是油溅还是会产生的。 我的灶具放在岛台这边,所以和常规的开放式厨房又有很大的区别。 灶具选择了升降式的,因为我不希望使用固定形式的集成灶,所以当时找这款集成灶也是花了蛮多的时间。 因为我开火的频率不高,所以不太会有油污溅出来,但如果你家是常开火的,岛台上放置灶具还是不太建议,主要是油溅。
因为卫生间的压缩,所以我把台盆放置在了公共区域。 左右两边做了收纳格子,方便我放置日常的化妆品而又不至于台面是乱七八糟的。 选择这类做法,收纳上面一定要前期做好分配。需要清楚自己的常用物品数量、尺寸、然后买对应的收纳盒。
干区采用的是大理石定制 但要说下的是这种工艺的要求会比较高,因为大理石非常重,所以需要后面焊制钢架。 大理石的类型是:香雪梅
厨房收纳上考虑的非常的充分,台面上平时基本也就比现在多一个电饭煲。 平时的状态基本就是如此。 那么厨房的收纳有什么Tips给大家呢? 收纳需要因人而异,但逻辑是想通的。 首先我会把自己常用的厨房电器全部整理出来,列一个清单。 然后把自己喜爱的产品做一个选择,看的差不多后。把产品的尺寸进行记录。 特别是一些小家电,然后等到和橱柜沟通的时候把这些清单交给他们。如果这个时候 你觉得你完事了,那么没那么简单。 如果有靠谱的设计师,那么他会来帮你审核橱柜方的图纸,如果没有那么一定要自己确认下。 确保自己的东西全部可以放进去,且有很明确的位置。条件允许的情况下,可以预留一些储物空间, 因为你不知道以后的生活中你将会添置
银色的是我为了吃火锅弄的可移动拆座,这个在我们的设计中已经运用了很多。 客户的反馈都是蛮好用的。 岛台后面我还做了一些层板,主要是给我放置茶、速溶咖啡、茶杯等这些小东西的。
餐厨空间的地面其实是我用的“瓦片” 也是属于很少见的材料,但是我想说的是我“翻车”了。 主要是因为瓦片太软,而且是广州那边运过来的,所以现场贴的时候已经有很多大小不一的缝隙。 再加上这种材料鲜有人做过,施工难度非常高。我觉得我交待的也不够清楚,所以导致填料后纹理没有那么清晰。 表面的处理上,我用了地面漆,但同样的就是硬度不够。 在搬家前我还一度想砸掉重新来,奈何时间有限,所以不想折腾。看之后空了,把这块地面重新翻修一下。 因为是自己家,这种不确定的材料我也想尝试,但这种情形大家千万别效仿到客户家,不然会让你哭的很有节奏感。自己家倒是无所谓,可以让我获得对这类型材料更加深刻的体会,蛮值得。
这个就是餐厅和客厅之间的角度,可以看到这个空间的“窄”了吧。
全屋无踢脚线设计、无门槛石设计。 这些设计已经在我们客户群体里面被普及,我自己切身体会下来,确实也没有任何的烦恼。
卫生间就比较特殊了 小但是功能又很全。 首先是来自日本原装的松下台盆, 这款台盆主要是非常的小巧,缺点是只有一路水。 冬天上完厕所,洗手略冷。
卫生间四个面全部采用“聚氨酯”这种材料 这种材料也是我第一次使用,但目前已经推广给我好几个客户 我感觉这款材料非常的稳定,就是整体的价格略高。 采购:广州厂家供货,一张在460元左右。
用了两款不同纹理的“聚氨酯”板材 它的特性是防水、安装简单、环保
这个就是我的房间了,是主卧空间。 放置了一款1.5米宽的床,然后加30公分的榻榻米。 基本上等同于1.8米的床,因为房间的开间尺寸。所以左右两边的过道非常的窄 但是我自己喜欢大床,所以宁可牺牲过道也要放这款床。
衣帽间常在了帘子后面 为什么要用帘子? 成本的控制方便考虑,还有就是节省空间。 我体验下来感觉非常不错,最重要的是效果上也没有什么影响。 小空间非常适合用这种手法去处理。
次卧空间 相对于主卧,次卧空间会更加的开阔一些。 因为这里是原本的主卧空间,目前放置的床是1.5米的尺寸。
这款“鸟笼灯”来自于海淘,我家除了筒灯,其他所有的灯饰都来自于海淘。 灯的细节蛮体现一个空间的质感,当然我家的装修款里灯也是占了很大比例。
相关案例推荐
墨菲空间设计
设计师相关作品

粤公网安备 44010602000156号