前言: 这套房子是一个学区房,位于长沙比较有名的区域-梅溪湖。当时是女主找到我的,初次见面聊过一次后,她说和我投缘,很多理念和她的想法基本一致,于是很愉快的决定找我做他们家的设计师。因为男主在外地上班,所以整个房子的沟通及装修的过程大部分是和女主人配合完成的。女主人是四川妹子,性格非常爽朗,目前带着两个女儿居住在长沙。
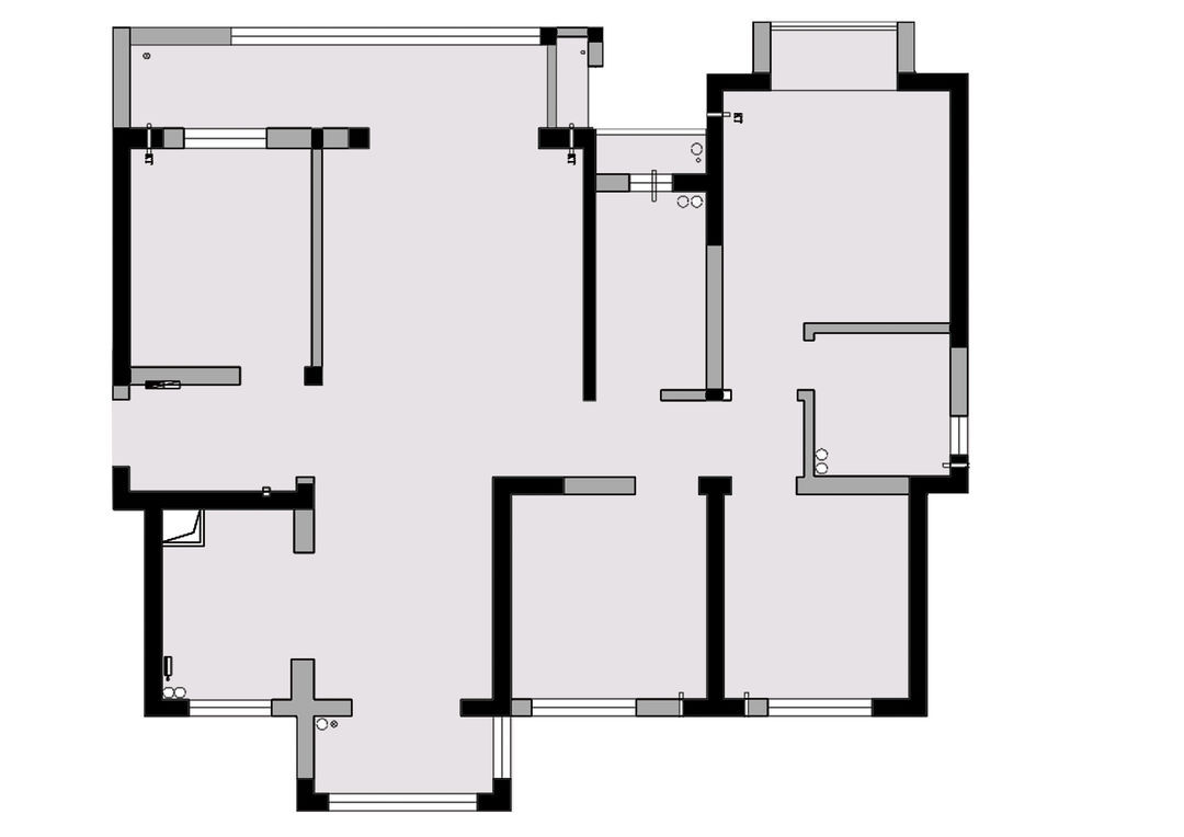
这个房子是非常标准和常见的一个户型,南北通透,4房2厅。整个空间分割的比较散,而且每个空间都很局促,业主提出诉求:喜欢烘培,需要大大的厨房,将来两个孩子都会在这边读书,需要有独立学习的空间,同时还明确主卫不需要,增加储物功能。
解决方案:1、入口左边的空间作为开放式书房,靠近阳台的墙体拆除,把书房延伸出去,同时增加榻榻米及书柜的功能,为了让家人有更多的互动及采光的考虑,我们在沙发背靠的柜子做了一个镂空的设计,相当于一个大的窗户,这样让整个空间更加开阔,客厅和书房也可以交流互动。 2、把北面的阳台墙体拆除,把厨房的操作台面延伸出来,中西厨分开,满足女主人烘培的需求如果每个房子都有这么大的一个厨房,我想
电视柜全部用书柜的形式展现,沙发相倚一道橡木书墙,透过自由挪移家具摆设,予以空间高度弹性,实现亲子相伴共读、孩童奔跑游乐的可能。
将收纳与空间融合为一,减去多余造型装饰、回归纯粹机能用途。
客厅采用了无主灯设计,用轨道灯、配合不同的光源需要,丰富了灯光层次,精致的茶几组合富有层次感,也代表了主人公对生活的态度,认真。
“窗洞”设计更是客厅、书房家人互动的窗口,整个空间不管在哪个角落,都有物品的的归属地。
餐桌区域一家人在熟悉的空气里围坐,邂逅生活的美好。开放式厨房进一步的延伸了原本这个封闭的空间,尽可能的满足功能最大化的同时依然具有宽敞感。
这间多功能房可以兼具不同使用场景,可以是书房,可以是阅读室,来了客人还可以把榻榻米当做床,作为卧室使用,一室多用。
“窗洞”设计更是客厅、书房家人互动的窗口,整个空间不管在哪个角落,都有物品的的归属地。
相关案例推荐
希雅设计-杨小年
设计师相关作品

粤公网安备 44010602000156号