前言:
									屋主是医护工作者。
喜欢干净、素雅、温馨的家居氛围。
希望在累且燥的时候,
能够被治愈,被温暖。
									
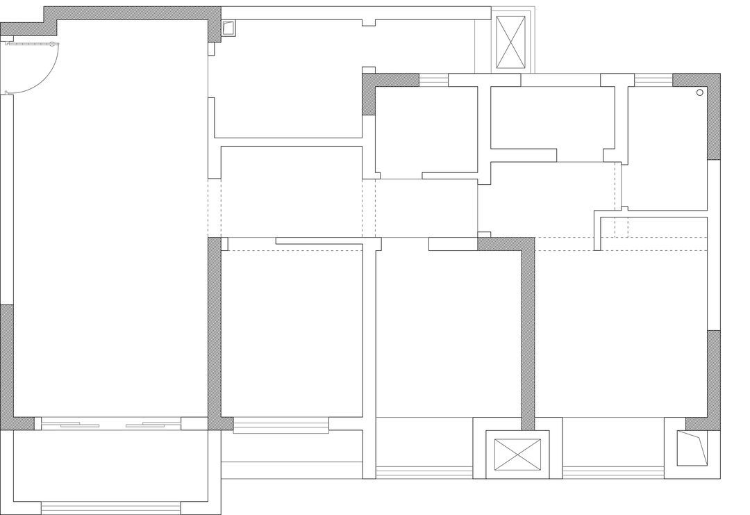
										户型图
										
											
											
								
							
								
									户型比较方正,动静分区明显。
业主希望厨房是单独空间,能和晾晒区分开;主卧要有单独的衣帽间,次卫有单独的淋浴房,方便家人的生活。
设计还通过飘窗的改造,增扩了房间的使用面积,活动范围更舒阔。
										客厅
										
											
											
										
											
											
										
											
											
										
											
											
										
											
											
								
							
								
									
								
							
								
									抹茶绿,是表达四季的自然色彩,是最贴近自然的舒缓色调。她既没有墨绿的凝重,也不似艳绿那般妖娆。她柔和隽永,安安静静。与亮白色和谷黄搭配,清新宜人。
打开家门的那一刹那,所有的焦躁情绪统统消失,心情也会莫名的好起来。哪怕一个人静静地待着,也会被家独有的亲切感温柔以待。
客厅的诗意,还体现在设计元素的形态上。石膏线条的干练利落,美式家具的婉转流畅,不同形状的混搭融合,完美平衡了生活的日常感与精致感
										餐厅
										
											
											
										
											
											
								
							
								
									餐厨空间延伸了客厅的温和气质。蝶翅蓝色调的运用,丰盈了空间的层次感,也能与抹茶绿形成统一的色彩情感表达,唯美和谐。
平淡生活的温暖处,在于与家人、孩子一起分享美食,分享品味美食的愉悦心情。
										卧室
										
											
											
								
							
								
									
								
							
						抹茶的轻柔因子,铺陈整个睡眠空间,舒缓又安心。伴着窗外星星点点,屋主注定一夜好眠。
玉粉色,
代表着秋日的浪漫,
宛如万千株粉黛轻曳于秋风之中。恬静的气质,有一种岁月静好的温柔感,似绚美的晚霞,似柔和的熏风轻拂
相关案例推荐
网友评论
						
						
						
						
                        
						
						 
							美的家装饰
设计师相关作品
 
 
 
												
													
														
															
																 
												
													
														
															
																 
												
													
														
															
																 
												
													
														
															
																 
												
													
														
															
																 
												
													
														
															
																 
												
													
														
															
																 
												
													
														
															
																 
												
													
														
															
																 
												
													
														
															
																 
												
													
														
															
																 
												
													
														
															
																 
												
													
														
															
																 
												
													
														
															
																 
												
													
														
															
																 
												
													
														
															
																 
												
													
														
															
																 
												
													
														
															
																 
												
													
														
															
																 
												
													
														
															
																 
												
													
														
															
																 
												
													
														
															
																 
												
													
														
															
																 
												
													
														
															
																 
												
													
														
															
																 
												
													
														
															
																 
                                                     
                                                         
                                                     
                                                     
                                                     
                                                     
                                                         
                                                     
											
										 
											 
											 
											 
											 
											 
														 
														 
														 
														 
														 
				 
                
 粤公网安备 44010602000156号
粤公网安备 44010602000156号