拾光?静望
贵阳
|三室 |
105㎡
|20~30万
2019-02-22
4590
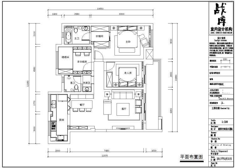
前言: 所谓您是什么样的人,就该住什么风格的空间,居家空间,是主人品位及文化底蕴的体现,现在咨询新中式风格的年轻人渐多,说明这种风格开始让很多年轻人青睐。本案业主开始时在简美风格和新中式风格之间犹豫,在团队的合理建议下,最终定下新中式风格。空间里的造型运用了时下流行的玫瑰金线条、富有质感的免漆饰面板、包豪斯风格地砖等来诠释中式元素,点缀少许传统中式元素,从而摆脱多数人理解的中式风格的沉闷,空间也不失东方文化底蕴及现代时尚感
客厅
里面,石材与木制,金属材质搭配使用,达到视觉平衡,现代感极强的包豪斯风格地砖,在铺装上动些许心思,使其融入空间,空间的质感再得升华,地毯,让客厅的地面少了冰冷感
走廊
相关案例推荐
网友评论
贵阳战库空间设计
设计师相关作品

粤公网安备 44010602000156号