前言: "When you are old and gray and full of sleep, And nodding by the fire, take down this book, And slowly read, and dream of the soft look..."引自英文情诗《When You Are Old》 拿到这个项目的时候,我们并没有从业主那里得到设计的要求或限制。
客厅
本案是一套300㎡的联排别墅。屋主当时买下这套房子,主要是出于两个女孩有自己独立成长空间考虑。夫妻俩相信设计师细心,索性就把这件事完全交给设计师托管。
这个地下室属于半地下室户型。平时屋主都是从地下车库回家,可以换好家居服,享受起居空间及休闲空间在一起时光。
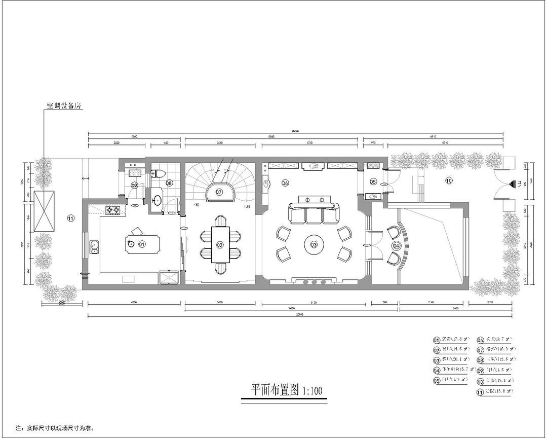
一层分为的客厅/餐厅及厨房,功能目的主要接待亲朋友好友聚会活动。
厨房
在厨房空间里面,出于两个考虑:第一个,女屋主照顾带小女儿,小女儿比较粘人,比较闹腾;第二个,过年过节的家庭里面,吃团饭,一家人可以包包饺子,与家人唠唠家常,夫妻之间增加彼此感情。
相关案例推荐
网友评论
陈宗绘
设计师相关作品

粤公网安备 44010602000156号