前言: 这是位于浙江省嘉兴市的一处独立住宅,拥有开阔的景观用地,建筑面积1000平米。业主曾留学澳洲,金色黄昏、风的轻佻、王子公主、世界懒洋洋...
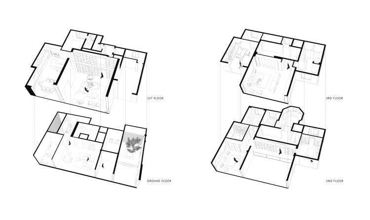
连同地下室共四层,三代人入住,夫妻双方以及两个孩子(男孩6岁,女孩刚刚出生),还有父母。空间规划初期,我们就明确定位BF和1F为公共空间,2F和3F为隐私区域(休息区)。
花园局部
地下室下沉花园
由于地下车库设置在地下室,所以80%的情况下,主人和客人都将在地下室进入空间,希望空间给人比较温暖的感觉,所以在墙面材质上我们选择胡桃木木饰面,地面上则选择了一种适合用在潮湿空间的编制地毯(比较适合用在地下室等空间,且编制地毯为卷材铺设,所以看不到接隙)。当然我们将休息室和影音室包括健身房也一共设置在了地下室。整体灰色且有质感的编制地毯,大面积留白搭配胡桃木木饰面,使得空间开阔独特。
minotti家具搭配foscarini灯具
来自英国伦敦的纯手工吊灯
紧邻餐厅的客厅与餐厅间也连通,做饭、用餐、电视、小孩游戏等在一个大空间内共存。配色和家具选择上,在基于大背景灰调的基础上选择了麻质的沙发以及窗帘搭配一款从伦敦手工定制的大吊灯。温度且大气。家具上我们选择了绿色cassina单人沙发。
根据业主的生活习惯(很少在家做饭),所以我们一同决定将厨房设计成开放式,可以同时容纳下8人的大餐中距离厨房也比较近。餐桌上搭配Viabizzuno线性吊灯。
餐厅一角
客厅与餐厅之间的廊道
相关案例推荐
朴居设计研究室

粤公网安备 44010602000156号