前言: 这是一个使用面积80㎡,三室两厅两卫的户型。目前是临时居住,未来可能是三口之家的常住之地。屋主想要简约、舒适的设计,喜欢日式中的人性化生活细节和自然亲和的感觉,对灯光氛围和细节有较高的要求,在色彩方面想要一个冷色的背景+暖色的家居。
原始结构户型图:入门是一条狭长的走廊,采光很差。右侧是一个干湿分离的卫生间,在未来生活中的使用率不是很高。主卧空间狭小,放不下衣柜。
1、我们将入门右侧卫生间改成U形衣帽间,解决整个空间的储物需求。将入门右侧卧室改成变开放式书房,加强走廊的采光。2、我们将主卫移出主卧,变成空间唯一的卫生间。儿童房做内嵌式衣柜,是空间整体。
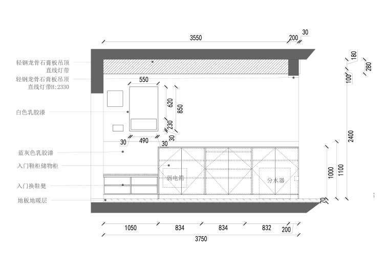
1、入门右侧原有水池的位置,做成入户衣帽柜,与我们平时储物的衣帽间进行区分。左侧我们顺势做了半高的鞋柜,将地暖分水器和换鞋凳加入其中。2、书房为半开放式,由四扇玻璃推拉门进行空间分隔,加强走廊空间采光,在一面墙上将书柜和书桌相结合。而对面入门可见的墙上,做照片墙和挂吉他。3、进入厅内右侧有一个狭长的餐厅,定制卡座和收纳柜,让空间充实。收纳柜也将冰箱和饮水机嵌入其中。
入门走廊的左侧吊顶做了悬浮的感觉,暗藏灯带,让采光昏暗的里测有轻巧的感觉。
墙面做了半高的灰蓝色乳胶漆,超过鞋柜10公分,做出一个层次感。
鞋柜的尾端,将杂志架和插座嵌在侧面,可作为边几使用。沙发背面是灰蓝色和米白色乳胶漆的碰撞。
衣帽间分为叠放区、短衣区、长衣区、抽屉、储存区、熨烫区、脏衣区。帽子、包包、衣物、被褥都有各自的容身之处。
里面暗藏了脏衣篓,回到家中换衣服的时候可以直接从上面扔下去,打开柜门,拿出篓子直接就可以去洗衣服了。
右侧在一个短衣区内用了蓝色的柜体,内加灯光做出一种画框的感觉。左侧包原有卫生间管道的位置,做了进深浅的开放格,可以放熨斗和包包等小物件。
玻璃抽屉方便看见里面存放的物品。
书房用玻璃推拉门进行分割空间,书柜和书桌占满整面墙。将功能集中,另有更宽敞的活动空间。
书柜由抽屉、开放格、封闭书柜组合。上挂悬臂灯节省桌面空间。
客厅做了L形电视柜,宽敞且储物功能强大。
左侧黑色的山洞中,有一只小象正走出来。
左侧高柜和电视柜相连,面对白色电视柜做了黑色开放格避免了沉闷,有一种互动的相对的感觉。
吊柜下面加了内嵌式的暗藏灯带。地面用了蓝色黄色的木纹砖与地柜,形成呼应和冷暖的碰撞。
改变了传统厨房吊顶很低的设置,排烟管在吊柜内隐藏,顺着管道做了侧面开放格,存放台面物品,增加整洁性。窗户被处理成了内置形式的,上面做了层板和灯带,可以放些有情调的小装饰品。
台面下的灯带,是屋主最原始的需求。
相关案例推荐
末那识室内设计
设计师相关作品

粤公网安备 44010602000156号