前言: 屋主是一对年轻的建筑师夫妻,男业主注重空间分割解构,女业主则对软装陈设有独到的见解。夫妻俩和设计师经过深入的沟通,借助设计师之手,将生活的乐趣和态度都蕴藏在新家之中。
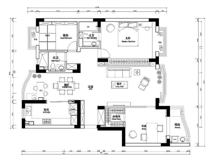
平面布置图
1.把吧台包进来,与餐厅成为一个主体,延长了空间视线范围,使光线更加通透,通风效果更好。
2.在主卧和客厅的位置重新砌了薄墙,在主卧设计了整排的衣柜,大大增加了主卧的实用收纳空间,使空间更加整体化。
3.餐厅与厨房采用移门的方式隔断,使厨房变成半开放式,大大提高了餐厅与厨房的空间交流对话。
4.把原有厨房内部隔断打开,有效的提高了厨房实用空间面积。
客厅主要是通过各种材质形态的组合,光与影,肌理与形态的搭配,演绎了一种无限延展的自然之美。深灰色地砖以及深灰色乳胶漆墙面搭配柚木饰面,构建了一种质朴沉稳的空间感受。
由于空间解构后客厅开间变窄,因此在靠窗的部分用阔叶植物、针叶植物以及休闲椅共同营造了一片绿色休闲区,绿色丝绒窗帘和金色落地灯则为空间陈设增添了些精致,绿色的主题贯穿到了空间的每一个角落。
深色的橱柜柜体与爵士白瓷砖的颜色碰撞,给人一定的视觉冲击,改动后的厨房有足够的台面操作空间,和增加了厨房储物空间。一块绘有几何图案和字母的防护垫凸显出屋主对烹饪的喜爱。
精致的餐具细节凸显了屋主对生活品质有着别具一格的要求,满满的都是生活幸福感~
餐厅和厨房区域以高颜值的玻璃移门相隔,划分空间的同时也不妨碍光线的流动,给人通透明亮之感,白色的吧台简洁明快,玻璃摆设增添了莹润剔透感,阳光透过百叶窗,在生活中投下温暖的光影。
温和细精致的床品, 大气稳重的灰色软包床头, 深色的卧室背景墙、 刚柔并济搭配的恰到好处, 营造出惬意精致的睡眠空间。
在主卧和客厅的位置重新砌了薄墙,在主卧设计了整排的衣柜,大大增加了主卧的实用收纳空间,使空间更加整体化。
家是培养艺术细胞,强化美感的摇篮,放进家里的各类物品最终会结合成人的审美情趣与观念。顶天立地的柜子在满足收纳功能的同时,也承担了展示业主品味和生活印记的功能。
相关案例推荐
浙江南鸿装饰股份有限公司
设计师相关作品

粤公网安备 44010602000156号