前言: 项目是二手房改造,约定看现场当天,进门听到钢琴优美的曲子,不是孩子练琴,而是女主人在弹琴,顿时有了好感,女主人是一个懂得生活的人,文艺精致。 房子现状保养得很好,“用料很足”,大量的实木,男主人提到买房子时他出差了,全权由他太太处理,因为保养很好的实木用料,房价高出市场价一截,不过并没有感受到男主人的抱怨,这是一个充满爱的家庭。 原来装修虽然用料足,但其实还有很大优化空间,沟通并没有花费多少时间就确定了项目。 有山、有云、有蓝天,理应有一个更美的家。
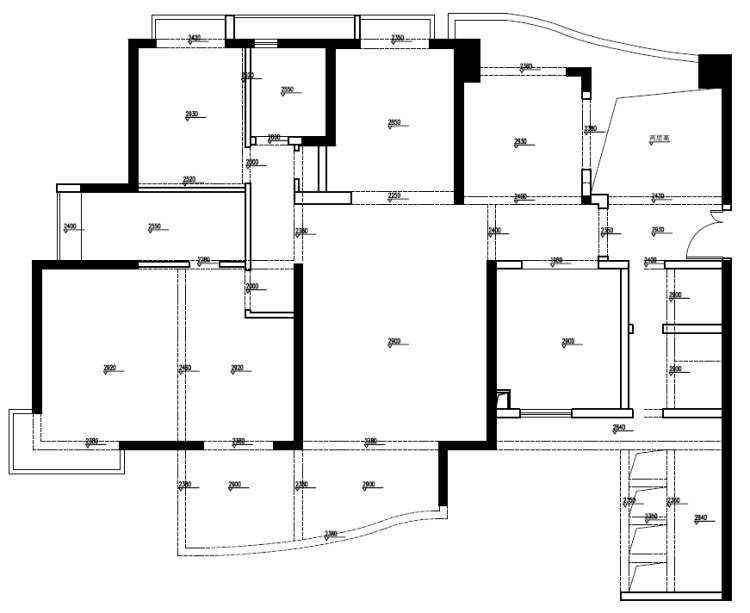
这是原始户型图,和业主详细沟通了需求,有几个问题: 1、原业主三口之家,只作为两房使用,现业主三代同堂,至少需要三卧室。 2、整体户型有4个阳台,但目前都没利用起来。 3、主卧很大,没有衣帽间,并且有一根房梁需要处理。 4、空间显得凌乱零碎,被各种墙格格挡,虽然房子条件很好,但是不通透。 5、需要一个书房多功能房,有钢琴、小提琴。
针对业主需求,我们对原有户型和流线做了优化。 1、阳台处理1:挑高的入户花园拥有非常好的景观,封起来作为会客休闲区; 2、阳台处理2:生活阳台很大,充分利用起来作为储物空间; 3、阳台处理3:餐厅阳台,作为景观阳台,有非常好的山景; 4、阳台处理4:客厅阳台,隔出一个区域健身区。 5、空间利用扩展房间1:进门左手边两个小的储物间打通,作为书房多功能房,生活阳台改造储物功能。 6、空间利用扩展房间2:主卧空间很富余,隔开衣帽间,同时也处理了房梁问题; 7、空间利用扩展房间3:原多功能房改为小孩房; 8、将会客区和餐厅的隔墙打通和客厅相连起来,空间一下通透开来。 实际效果可以参照对比原现场图。
我们将这个入户花园改造为会客厅, 中空加壁炉的设计使得整个的房间大气起来,一种贵气自然而然的显现出来,一块蓝色的背景装饰画仿佛给整个房间的色调起了一个主导作用,简约的线条也将其低调的特质凸现出来。
阳台用大大的落地玻璃窗封起来,既保留了很好的景观视野,也拓展了室内空间。跳色的布艺,精致的摆件,艺术挂画打破了整个房间的呆滞,彼此之间又保持着,形态、色彩和谐与平衡。
孔雀蓝的单人沙发椅也成了这个空间的一大亮点,摆放的黄色花卉恰好,蓝与黄的碰撞,使得视觉上得到了更大的冲击。
窗外的美景怎可错过呢?透过大大的落地窗,窗外的美景一览无遗,米色的皮质沙发透出了房间的一丝小奢华,再配以蓝色圆形点状地毯,一切刚刚好。
客厅也附和着本案的主题,低调简约中透着品质,简约的吊顶及背景线条,空间通透不少,拼接装饰画仿佛将装个房间的色彩做了一个汇总,各自独立却相互联系。
两张单人沙发椅,使得空间更加的饱满。
简单的窗帘多了几分的素雅与低调,米色皮质沙发上的跳色抱枕作为点缀,空间的氛围一下子活跃了起来。
沙发背后的装饰画,和餐厅装饰画呼应。
客厅一隅,米色皮质沙发,黄色抱枕颜色和装饰画呼应。
精致的装饰摆件,慵懒的午后,杯中茶,手中书,一种安稳,一种归属,或许这就是家存在的意义,生活的味道。
我们首先打通了餐厅和会客厅之间的墙,让空间开阔通透起来。装饰上显得更加的温馨与自在,整个空间少了许多的装饰,简洁干净,椅背上的菱形格纹同时也将空间丰富化。
背景艺术装饰画让人忍不住遐想,色彩也延续这空间主题,黄铜色的美式金属吊灯,将整个空间添加了几分的温馨。
从客厅望去,画面很是和谐,一切都是那么的静谧美好。
主卧室简洁的线条,背景墙采用皮雕工艺,温柔的取色,一种轻松自在的舒适感油然而生,整个空间在追求美感的同时也不失了舒适感。
深色窗帘和地毯的配合,使得空间更加的耐看且有层次感。
床头柜上的精致小花艺,暖色的灯光,整个房间的显得温馨。
父母房稍不同于其他的房间,色调柔和委婉,带给人的,只是一种岁月沉淀下来的沉稳之感,桌面采用原木的材质,窗帘也采用了稳重的褐色,满满的温润质朴,内敛淡然。
床上靠枕和背景挂画做了一个呼应,内敛低调的将房间的氛围烘托起来,好似满满的优雅气息从中溢出。
深深浅浅的粉色,总是渗透着少女的粉嫩心,满满的少女感,相信小主人公也是以为粉粉嫩的小公主。
美观的同时也少不了实用感,储存功能不可小觑。
相关案例推荐
方界空间设计
设计师相关作品

粤公网安备 44010602000156号